Луцький виш побудує котельню
Будівництво котельні на вулиці Львівській планують здійснити в Луцькому національному технічному університеті.
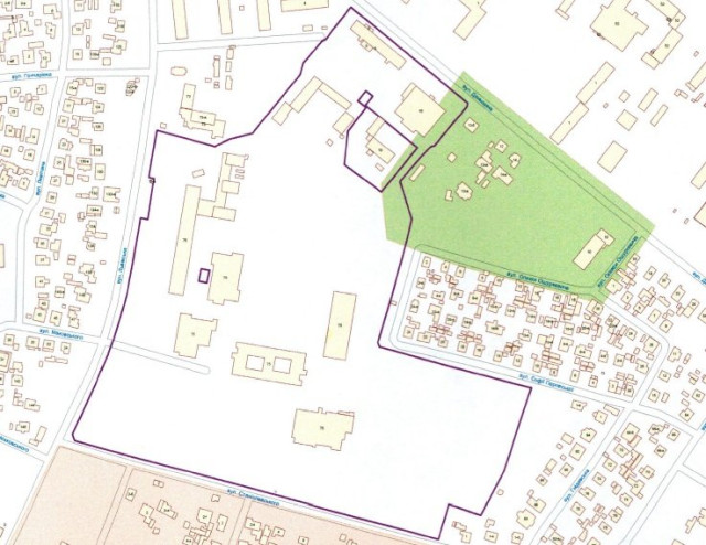
Містобудівні умови та обмеження для проектування нового будівництва котельні спорткомплексу Луцького НТУ на вулиці Львівській, 75 затвердили наказом управління містобудування та архітектури Луцької міськради.
Категорія земель ділянки площею 15,46 гектара – землі житлової та громадської забудови, вид використання ділянки – для обслуговування навчального закладу. Граничнодопустима висотність споруди – до п’яти метрів. Ділянка розташована на підтоплених територіях.
Підписуйтесь на наш Telegram-канал, аби першими дізнаватись найактуальніші новини Волині, України та світу
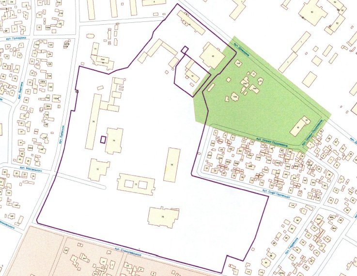
Містобудівні умови та обмеження для проектування нового будівництва котельні спорткомплексу Луцького НТУ на вулиці Львівській, 75 затвердили наказом управління містобудування та архітектури Луцької міськради.
Категорія земель ділянки площею 15,46 гектара – землі житлової та громадської забудови, вид використання ділянки – для обслуговування навчального закладу. Граничнодопустима висотність споруди – до п’яти метрів. Ділянка розташована на підтоплених територіях.
Знайшли помилку? Виділіть текст і натисніть
Підписуйтесь на наш Telegram-канал, аби першими дізнаватись найактуальніші новини Волині, України та світу
Коментарів: 2
А
Показати IP
17 Травня 2019 21:33
Будинок Офіцерів, може пора його до ладу привести? Лучани, вам не соромно, те що дісталось в належному вигляді довести до руйнації. Віддайте його полякам, щоб ще раз нам показали які ми європейці.
33ій
Показати IP
17 Травня 2019 21:48
Будинок офіцерів доцільніше відбудувати з нуля. А те що є - повністю демонтувати
Будували дорогу і знайшли сотні золотих монет, яким 2200 років: у Чехії натрапили на кельтське поселення
Сьогодні 00:17
Сьогодні 00:17
19 травня: свята, події, факти. День сімейної медицини, відкрито першу в Україні недільну школу
Сьогодні 00:00
Сьогодні 00:00
Через бали для Румунії й України на «Євробаченні» голова суспільного мовника Молдови йде у відставку
18 Травня 2026 23:38
18 Травня 2026 23:38
На Європу насувається рекордна спека, – ЗМІ
18 Травня 2026 23:18
18 Травня 2026 23:18
Круїзний лайнер з хантавірусом прибув до Роттердаму
18 Травня 2026 23:00
18 Травня 2026 23:00
Війна США з Іраном вже обійшлася світовим компаніям у $25 мільярдів, – Reuters
18 Травня 2026 22:40
18 Травня 2026 22:40
На Волині судитимуть зловмисника, який вкрав гаманець з будинку пенсіонера
18 Травня 2026 22:22
18 Травня 2026 22:22
Під час виконання бойового завдання загинув волинянин Олег Хайба
18 Травня 2026 22:02
18 Травня 2026 22:02





Додати коментар:
УВАГА! Користувач www.volynnews.com має розуміти, що коментування на сайті створені аж ніяк не для політичного піару чи антипіару, зведення особистих рахунків, комерційної реклами, образ, безпідставних звинувачень та інших некоректних і негідних речей. Утім коментарі – це не редакційні матеріали, не мають попередньої модерації, суб’єктивні повідомлення і можуть містити недостовірну інформацію.