Частину старої школи на Волині віддають в оренду
Частину приміщення старої будівлі школи, що в селі Прилісне на Камінь-Каширщині, здають у довгострокову оренду. Там розміщувалася аптека.
Про це йдеться на майданчику для електронних торгів Prozorro. Продажі. Аукціон оголосила Прилісненська сільська рада. Кінцевий термін подання пропозицій – 18 жовтня. Аукціон відбудеться 19 жовтня.
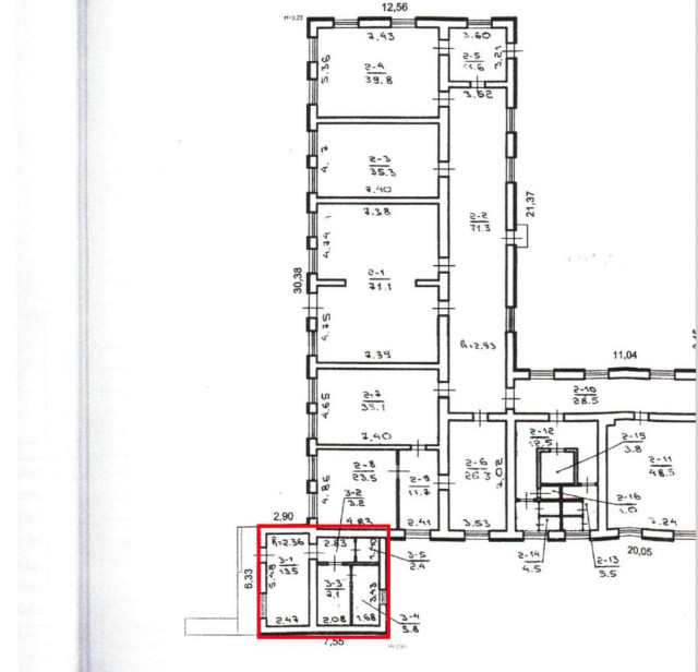
В оренду хочуть віддати частину приміщення старої школи площею 32,7 квадратних метра, що на вулиці Сойне, 1б у Прилісному. Приміщення потребує ремонту. Цей лот на торги виставляють уперше.Запропонований термін оренди – п’ять років. Стартова вартість щомісячної плати – 845 гривень.
Нагадаємо, на Волині віддають в оренду частину приміщення Колківської районної лікарні.
Підписуйтесь на наш Telegram-канал, аби першими дізнаватись найактуальніші новини Волині, України та світу
Про це йдеться на майданчику для електронних торгів Prozorro. Продажі. Аукціон оголосила Прилісненська сільська рада. Кінцевий термін подання пропозицій – 18 жовтня. Аукціон відбудеться 19 жовтня.
В оренду хочуть віддати частину приміщення старої школи площею 32,7 квадратних метра, що на вулиці Сойне, 1б у Прилісному. Приміщення потребує ремонту. Цей лот на торги виставляють уперше.Запропонований термін оренди – п’ять років. Стартова вартість щомісячної плати – 845 гривень.
Нагадаємо, на Волині віддають в оренду частину приміщення Колківської районної лікарні.
Знайшли помилку? Виділіть текст і натисніть
Підписуйтесь на наш Telegram-канал, аби першими дізнаватись найактуальніші новини Волині, України та світу
Коментарів: 0
З початку контрнаступу на півдні українські війська звільнили майже 470 км² території, – Сирський
Сьогодні 12:06
Сьогодні 12:06
На Волині розшукують 44-річного мешканця Боратина
Сьогодні 11:50
Сьогодні 11:50
У Росії повторно уражені порти в Ленінградській області
Сьогодні 11:33
Сьогодні 11:33
У Мінцифри заявили, що повісток в «Дії» не буде
Сьогодні 11:16
Сьогодні 11:16
Митники почули дивні звуки: в аеропорту Схіпгол виявили контрабанду понад 260 яєць папуг
Сьогодні 10:26
Сьогодні 10:26
Отримав травму голови: деталі ДТП у Луцьку на проспекті Молоді за участю мотоцикліста
Сьогодні 09:53
Сьогодні 09:53
У США планують випускати банкноти з підписом Трампа
Сьогодні 09:36
Сьогодні 09:36
Канада наклала санкції ще на 100 суден тіньового флоту Росії
Сьогодні 09:20
Сьогодні 09:20


Додати коментар:
УВАГА! Користувач www.volynnews.com має розуміти, що коментування на сайті створені аж ніяк не для політичного піару чи антипіару, зведення особистих рахунків, комерційної реклами, образ, безпідставних звинувачень та інших некоректних і негідних речей. Утім коментарі – це не редакційні матеріали, не мають попередньої модерації, суб’єктивні повідомлення і можуть містити недостовірну інформацію.