У Луцьку надали ділянку забудовнику, який обіцяє передати 6% житла місту
Вже до кінця року надати дві квартири міській громаді обіцяє забудовник ділянки на вулиці Рівненській, 4.
Про це йшлося під час пленарного засідання 30-ї сесії Луцької міськради 7 вересня.
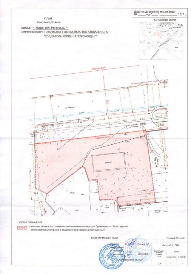
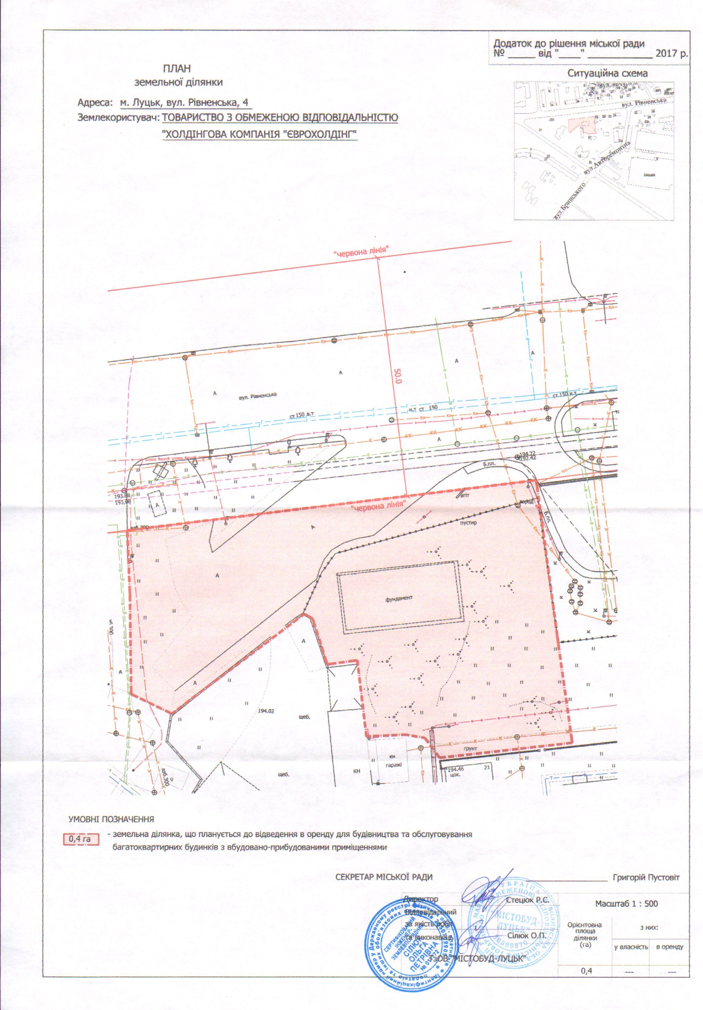
Депутати розглянули проект рішення про надання ТзОВ «ХК «ЄВРОХОЛДІНГ» дозволу на розроблення проекту землеустрою щодо відведення земельної ділянки для будівництва та обслуговування багатоквартирних будинків з вбудовано-прибудованими приміщеннями на вул. Рівненській, 4.
Як повідомив голова земельної комісії міськради Євгеній Ткачук, забудовник звернувся з гарантійним листом ще 24 липня. У листі йшлося про те, що 6% житлової площі передадуть громаді міста для задоволення житлових потреб, насамперед, воїнів АТО. До кінця року обіцяють надати дві квартири. До того ж, підприємство сплатило приблизно три мільйони гривень пайової участі цьогоріч, а 700 тисяч надав на ремонт однієї з алей центрального парку культури та відпочинку.
Депутат Богдан Богонос стверджував, що «не варто дарувати міську землю», тому що нерухоме майно займає меншу ділянку, ніж забудовник пропонує надати собі. Він пропонував поділити ділянку на дві частини, продавши другу частину з аукціону.
На це депутат Андрій Козюра поставив йому риторичне питання: скільки майна на ділянці повинно бути, щоб надати всю ділянку та яка норма законодавства це визначає?
Керівник проектів ТзОВ «ХК «ЄВРОХОЛДІНГ» Микола Дуда зауважив, що будуватимуть сучасне житло, втілюючи нові проекти, які прикрасять місто. З його слів, у центрі ділянки розташують дитячі майданчики для потреб мешканців будинків.
Депутати підтримали проект рішення.
Підписуйтесь на наш Telegram-канал, аби першими дізнаватись найактуальніші новини Волині, України та світу
Про це йшлося під час пленарного засідання 30-ї сесії Луцької міськради 7 вересня.
Депутати розглянули проект рішення про надання ТзОВ «ХК «ЄВРОХОЛДІНГ» дозволу на розроблення проекту землеустрою щодо відведення земельної ділянки для будівництва та обслуговування багатоквартирних будинків з вбудовано-прибудованими приміщеннями на вул. Рівненській, 4.
Як повідомив голова земельної комісії міськради Євгеній Ткачук, забудовник звернувся з гарантійним листом ще 24 липня. У листі йшлося про те, що 6% житлової площі передадуть громаді міста для задоволення житлових потреб, насамперед, воїнів АТО. До кінця року обіцяють надати дві квартири. До того ж, підприємство сплатило приблизно три мільйони гривень пайової участі цьогоріч, а 700 тисяч надав на ремонт однієї з алей центрального парку культури та відпочинку.
Депутат Богдан Богонос стверджував, що «не варто дарувати міську землю», тому що нерухоме майно займає меншу ділянку, ніж забудовник пропонує надати собі. Він пропонував поділити ділянку на дві частини, продавши другу частину з аукціону.
На це депутат Андрій Козюра поставив йому риторичне питання: скільки майна на ділянці повинно бути, щоб надати всю ділянку та яка норма законодавства це визначає?
Керівник проектів ТзОВ «ХК «ЄВРОХОЛДІНГ» Микола Дуда зауважив, що будуватимуть сучасне житло, втілюючи нові проекти, які прикрасять місто. З його слів, у центрі ділянки розташують дитячі майданчики для потреб мешканців будинків.
Депутати підтримали проект рішення.
Знайшли помилку? Виділіть текст і натисніть
Підписуйтесь на наш Telegram-канал, аби першими дізнаватись найактуальніші новини Волині, України та світу
Коментарів: 0
Ліки під ногами. Вчені дізналися, що поширений в Україні бур’ян може знищувати супербактерії
Сьогодні 00:14
Сьогодні 00:14
Вікна немов очі, а двері – як рот: чому наша уява домальовує звичайним предметам людські риси
14 Квітня 2026 23:38
14 Квітня 2026 23:38
Сайт Booking.com повідомив про витік даних клієнтів, – The Guardian
14 Квітня 2026 23:18
14 Квітня 2026 23:18
Україна відкриє генконсульство у Дрездені
14 Квітня 2026 23:00
14 Квітня 2026 23:00
У США чоловіка звинувачують у замаху на CEO OpenAI – підозрюваний заявляв про вимирання людства через ШІ
14 Квітня 2026 22:40
14 Квітня 2026 22:40
Трамп «шокований» Мелоні після того, як вона заступилась за Папу Римського
14 Квітня 2026 22:22
14 Квітня 2026 22:22
Алкоголю – у 18 разів вище за норму: на Волині водій запевняв, що слухав музику в авто
14 Квітня 2026 22:02
14 Квітня 2026 22:02
У російській Казані пролунав вибух на пороховому заводі
14 Квітня 2026 21:43
14 Квітня 2026 21:43


Додати коментар:
УВАГА! Користувач www.volynnews.com має розуміти, що коментування на сайті створені аж ніяк не для політичного піару чи антипіару, зведення особистих рахунків, комерційної реклами, образ, безпідставних звинувачень та інших некоректних і негідних речей. Утім коментарі – це не редакційні матеріали, не мають попередньої модерації, суб’єктивні повідомлення і можуть містити недостовірну інформацію.