Частину старої школи на Волині віддають в оренду
Частину приміщення старої будівлі школи, що в селі Прилісне на Камінь-Каширщині, здають у довгострокову оренду. Там розміщувалася аптека.
Про це йдеться на майданчику для електронних торгів Prozorro. Продажі. Аукціон оголосила Прилісненська сільська рада. Кінцевий термін подання пропозицій – 18 жовтня. Аукціон відбудеться 19 жовтня.
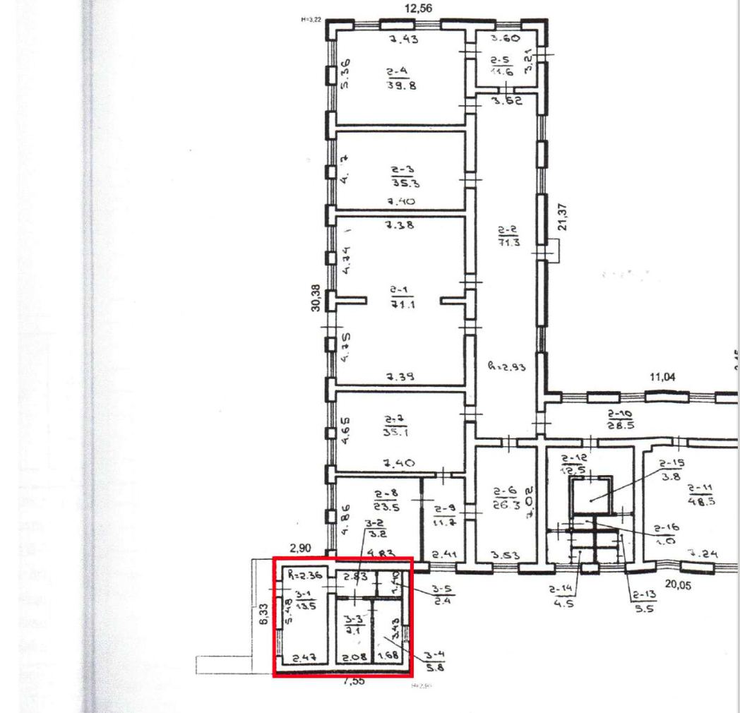
В оренду хочуть віддати частину приміщення старої школи площею 32,7 квадратних метра, що на вулиці Сойне, 1б у Прилісному. Приміщення потребує ремонту. Цей лот на торги виставляють уперше.Запропонований термін оренди – п’ять років. Стартова вартість щомісячної плати – 845 гривень.
Нагадаємо, на Волині віддають в оренду частину приміщення Колківської районної лікарні.
Підписуйтесь на наш Telegram-канал, аби першими дізнаватись найактуальніші новини Волині, України та світу
Про це йдеться на майданчику для електронних торгів Prozorro. Продажі. Аукціон оголосила Прилісненська сільська рада. Кінцевий термін подання пропозицій – 18 жовтня. Аукціон відбудеться 19 жовтня.
В оренду хочуть віддати частину приміщення старої школи площею 32,7 квадратних метра, що на вулиці Сойне, 1б у Прилісному. Приміщення потребує ремонту. Цей лот на торги виставляють уперше.Запропонований термін оренди – п’ять років. Стартова вартість щомісячної плати – 845 гривень.
Нагадаємо, на Волині віддають в оренду частину приміщення Колківської районної лікарні.
Знайшли помилку? Виділіть текст і натисніть
Підписуйтесь на наш Telegram-канал, аби першими дізнаватись найактуальніші новини Волині, України та світу
Коментарів: 0
Вагітна лучанка травмувалася під час спроби зупинити бус ТЦК: судили водія, який скоїв наїзд на жінку
Сьогодні 10:32
Сьогодні 10:32
«Народження дитини стає найбільшою радістю»: 20 відомих жінок Волині – про щастя бути мамою
Сьогодні 10:04
Сьогодні 10:04
Україна посилює перевагу на фронті, – ISW
Сьогодні 09:36
Сьогодні 09:36
Росіяни в перший день перемир’я били по Дніпропетровщині, Харкову, Запорізькій області та Херсонщині
Сьогодні 08:40
Сьогодні 08:40
Хантавірус наближається до України: в Польщі вперше запровадили карантин через загрозу епідемії
Сьогодні 07:43
Сьогодні 07:43
Вчені вперше створили детальну «карту запахів»
Сьогодні 00:28
Сьогодні 00:28


Додати коментар:
УВАГА! Користувач www.volynnews.com має розуміти, що коментування на сайті створені аж ніяк не для політичного піару чи антипіару, зведення особистих рахунків, комерційної реклами, образ, безпідставних звинувачень та інших некоректних і негідних речей. Утім коментарі – це не редакційні матеріали, не мають попередньої модерації, суб’єктивні повідомлення і можуть містити недостовірну інформацію.