У Луцьку погодили, де будуватимуть житло атовцям
Депутати Луцької міськради погодили детальні плани територій на земельних ділянках, які належать Волинській обласній раді.
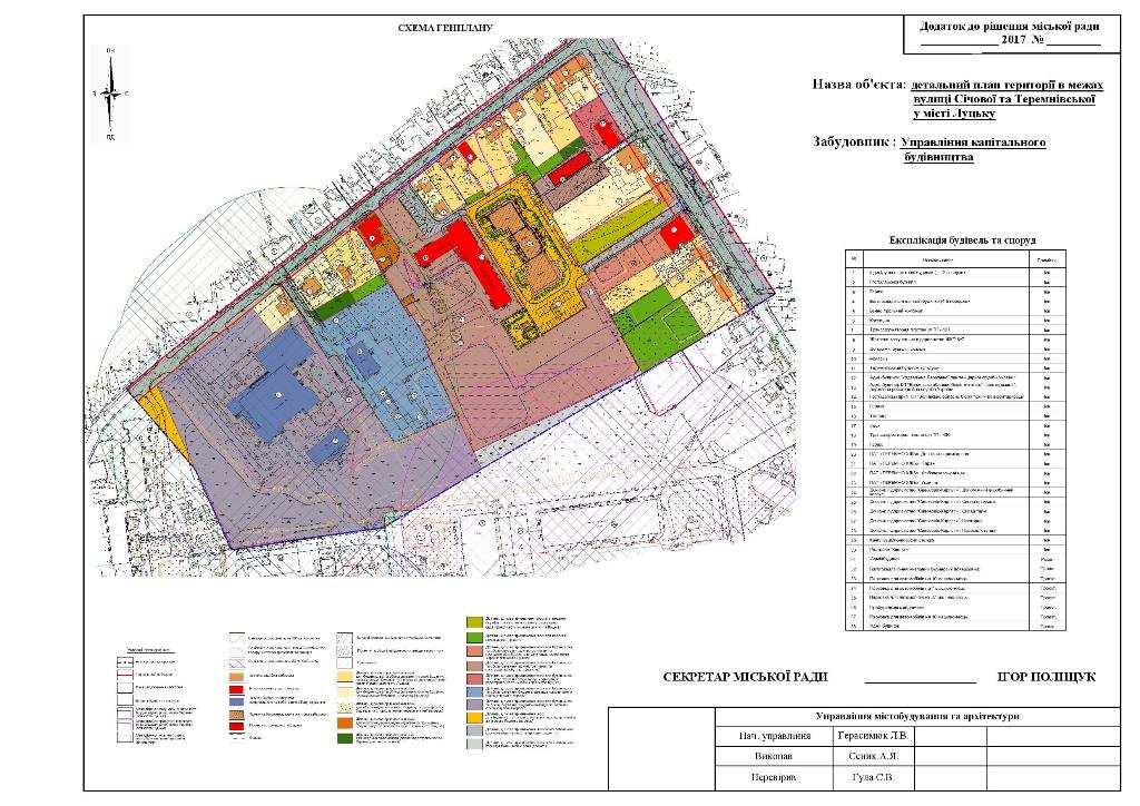
Про це стало відомо під час засідання сесії Луцької міської ради 31 травня.
Нагадаємо, голова Волинської облради Ігор Палиця під час останньої сесії повідомив, що волинські забудовники отримають дозвіл на будівництво багатоповерхівок на ділянках, які належать облраді, за умови, якщо на баланс ради для подальшої передачі бійцям АТО надаватимуть квартири.
Зокрема, дві ділянки для цих цілей розташовані у Луцьку. На сесії міськради депутати розглянули проекти детального плану територій на вулицях Залізна та Стрілецька.
Зокрема, на вулиці Залізна колись розташовувалася рятувальна станція, яка виїхала. Щоб можна було на цій ділянці збудувати 8-поверівку, яка там запроектована, треба цільове призначення.Аналогічна ситуація на вулиці Січова. Тут свого часу була пенітенціарна служба, яка теж з’їхала. Для зведення багатоповерхівки тут також треба змінити цільове призначення. Неподалік від ділянки, де хочуть збудувати будинок, є стихійна парковка, де пропонують облаштувати паркомісця для майбутніх мешканців багатоповерхівки.Наступним кроком стане проведення тендеру. Виграє його той забудовник, який передбачить найбільший відсоток квартир обласній раді для виділення їх бійцям АТО. «Розраховуємо з двох ділянок отримати більше 30 квартир на обласну раду, це близько 10-12% від загальної кількості», – зазначав Ігор Палиця та додав, що завдання облради полягає в тому, аби отримати максимальну кількість квартир від забудовника.
Підписуйтесь на наш Telegram-канал, аби першими дізнаватись найактуальніші новини Волині, України та світу
Про це стало відомо під час засідання сесії Луцької міської ради 31 травня.
Нагадаємо, голова Волинської облради Ігор Палиця під час останньої сесії повідомив, що волинські забудовники отримають дозвіл на будівництво багатоповерхівок на ділянках, які належать облраді, за умови, якщо на баланс ради для подальшої передачі бійцям АТО надаватимуть квартири.
Зокрема, дві ділянки для цих цілей розташовані у Луцьку. На сесії міськради депутати розглянули проекти детального плану територій на вулицях Залізна та Стрілецька.
Зокрема, на вулиці Залізна колись розташовувалася рятувальна станція, яка виїхала. Щоб можна було на цій ділянці збудувати 8-поверівку, яка там запроектована, треба цільове призначення.Аналогічна ситуація на вулиці Січова. Тут свого часу була пенітенціарна служба, яка теж з’їхала. Для зведення багатоповерхівки тут також треба змінити цільове призначення. Неподалік від ділянки, де хочуть збудувати будинок, є стихійна парковка, де пропонують облаштувати паркомісця для майбутніх мешканців багатоповерхівки.Наступним кроком стане проведення тендеру. Виграє його той забудовник, який передбачить найбільший відсоток квартир обласній раді для виділення їх бійцям АТО. «Розраховуємо з двох ділянок отримати більше 30 квартир на обласну раду, це близько 10-12% від загальної кількості», – зазначав Ігор Палиця та додав, що завдання облради полягає в тому, аби отримати максимальну кількість квартир від забудовника.
Знайшли помилку? Виділіть текст і натисніть
Підписуйтесь на наш Telegram-канал, аби першими дізнаватись найактуальніші новини Волині, України та світу
Коментарів: 0
Міськрада на Волині віддає в оренду землю під АЗС
Сьогодні 06:48
Сьогодні 06:48
Скарб без корабля: у швейцарському озері виявили римський вантаж, який зник 2000 років тому
Сьогодні 00:35
Сьогодні 00:35
30 березня: свята, події, факти. День прогулянки в парку та Міжнародний день за світ без відходів
Сьогодні 00:00
Сьогодні 00:00
Голову робота з фільмів «Зоряні війни» продали на аукціоні за мільйон доларів
29 Березня 2026 23:35
29 Березня 2026 23:35
Один загинув, за життя двох борються лікарі: у Києві розваги підлітків на даху потяга завершилися трагедією
29 Березня 2026 23:07
29 Березня 2026 23:07
Луцький суд жорстко покарав водія, якого вдруге спіймали без прав, та ще й п’яним
29 Березня 2026 22:39
29 Березня 2026 22:39
Бобівники: господиня з Любешівщини поділилася рецептом приготування поліської страви
29 Березня 2026 22:11
29 Березня 2026 22:11
У Луцьку чоловік демонстрував в «Акценті» статевий орган
29 Березня 2026 21:43
29 Березня 2026 21:43
Сталевий привид Волині, або Чи будували у Луцьку легендарний танк?
29 Березня 2026 21:15
29 Березня 2026 21:15



Додати коментар:
УВАГА! Користувач www.volynnews.com має розуміти, що коментування на сайті створені аж ніяк не для політичного піару чи антипіару, зведення особистих рахунків, комерційної реклами, образ, безпідставних звинувачень та інших некоректних і негідних речей. Утім коментарі – це не редакційні матеріали, не мають попередньої модерації, суб’єктивні повідомлення і можуть містити недостовірну інформацію.