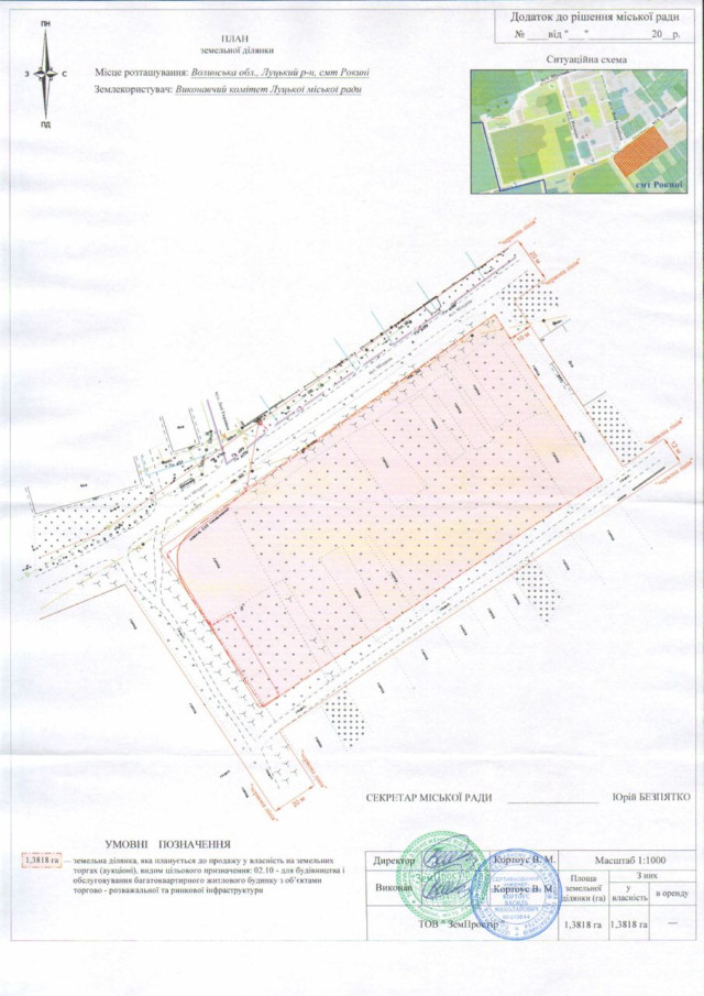
1,4 гектара: комунальну землю біля Луцька хочуть продати з аукціону
Земельну ділянку в Рокинях площею понад гектар планують виставити на аукціон. Однак для цього спершу потрібно розробити проєкт землеустрою та провести експертну грошову оцінку землі.
Про це стало відомо 31 жовтня на сесії міськради. Депутати розглянули проєкт рішення про надання виконавчому комітету Луцької міської ради дозволу на розроблення проєкту землеустрою щодо відведення земельної ділянки комунальної власності несільськогосподарського призначення в селищі Рокині Луцького району Волинської області (навпроти перетину вул. Лесі Українки та вул. Мічуріна), яка виставлятиметься на земельні торги (аукціон), та проведення її експертної грошової оцінки.
Як вказано, площа земельної ділянки – 1,3818 гектара. Вид цільового призначення – 02.10 для будівництва й обслуговування багатоквартирного житлового будинку з об’єктами торгово-розважальної та ринкової інфраструктури.
Після проведення експертної грошової оцінки земельної ділянки та розроблення проєкту землеустрою її зможуть виставити на аукціон після відповідного рішення сесії.
Депутати підтримали проєкт рішення. За проголосували 22 обранці громади.
Підписуйтесь на наш Telegram-канал, аби першими дізнаватись найактуальніші новини Волині, України та світу
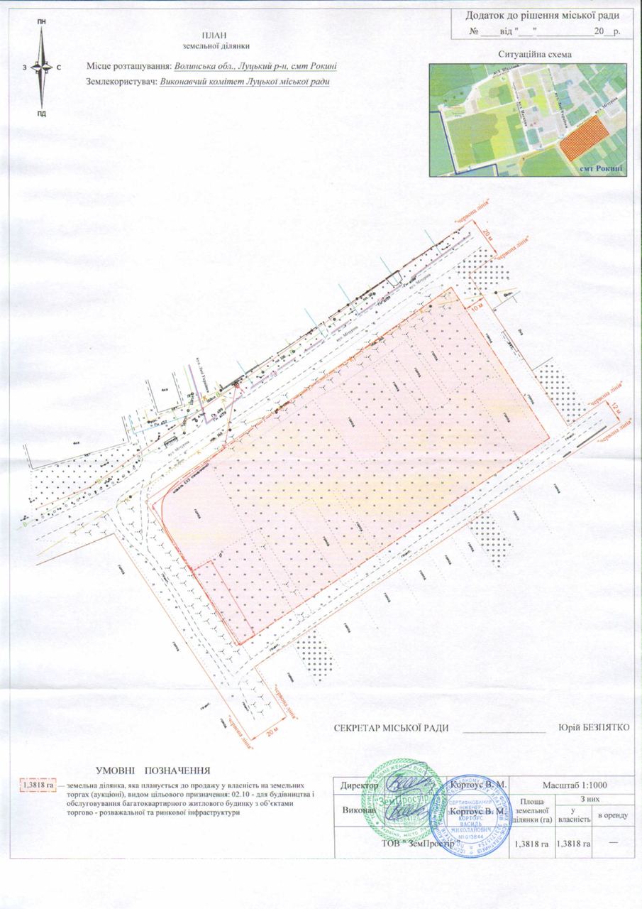
Про це стало відомо 31 жовтня на сесії міськради. Депутати розглянули проєкт рішення про надання виконавчому комітету Луцької міської ради дозволу на розроблення проєкту землеустрою щодо відведення земельної ділянки комунальної власності несільськогосподарського призначення в селищі Рокині Луцького району Волинської області (навпроти перетину вул. Лесі Українки та вул. Мічуріна), яка виставлятиметься на земельні торги (аукціон), та проведення її експертної грошової оцінки.
Як вказано, площа земельної ділянки – 1,3818 гектара. Вид цільового призначення – 02.10 для будівництва й обслуговування багатоквартирного житлового будинку з об’єктами торгово-розважальної та ринкової інфраструктури.
Після проведення експертної грошової оцінки земельної ділянки та розроблення проєкту землеустрою її зможуть виставити на аукціон після відповідного рішення сесії.
Депутати підтримали проєкт рішення. За проголосували 22 обранці громади.
Знайшли помилку? Виділіть текст і натисніть
Підписуйтесь на наш Telegram-канал, аби першими дізнаватись найактуальніші новини Волині, України та світу
Коментарів: 0
У Києві внаслідок російського удару загинув відомий хокеїст
Сьогодні 20:08
Сьогодні 20:08
Волинянам, які за 8000 доларів оформляли фіктивну інвалідність, обрали запобіжні заходи
Сьогодні 19:49
Сьогодні 19:49
В Україні найменша «мінімалка» серед країн ЄС
Сьогодні 19:30
Сьогодні 19:30
На Кубі вичерпалися запаси дизпалива та мазуту, на вулицях Гавани спалахнули протести
Сьогодні 19:10
Сьогодні 19:10
На Донеччині обірвалося життя воїна з Волині Сергія Грисюка
Сьогодні 18:51
Сьогодні 18:51


Додати коментар:
УВАГА! Користувач www.volynnews.com має розуміти, що коментування на сайті створені аж ніяк не для політичного піару чи антипіару, зведення особистих рахунків, комерційної реклами, образ, безпідставних звинувачень та інших некоректних і негідних речей. Утім коментарі – це не редакційні матеріали, не мають попередньої модерації, суб’єктивні повідомлення і можуть містити недостовірну інформацію.