Комфорт, безпека, енергонезалежність: у Луцьку зводять житловий комплекс нового формату
У сучасних українських містах дедалі більше цінуються не просто квадратні метри, а цілісна концепція простору для життя. Безпека, доступ до якісної інфраструктури, енергонезалежність, близькість до природи – усе це стає новим стандартом для тих, хто шукає житло для себе та своєї родини.
Саме таким проєктом став житловий комплекс «Хвоя», що нині реалізується на Волині. Це не просто житло, а життєвий простір, який враховує потреби сучасної людини в умовах нової української реальності.
Екологічність та енергонезалежність – вимога сучасності
На особливу увагу заслуговує система альтернативного енергопостачання.
«Житловий комплекс «Хвоя» вирізняється своєю екологічністю та зручністю для мешканців. Встановлені сонячні батареї забезпечують ефективне використання відновлюваної енергії, що дозволяє знижувати витрати на електроенергію та зменшувати вплив на навколишнє середовище. Завдяки сучасним технологіям мешканці комплексу можуть користуватися екологічно чистою енергією, що робить життя більш комфортним та стійким до змін клімату», – зазначає забудовник.
У компанії також додають, що на сьогодні є актуальним питання енергетичної свободи. Тому унікальністю комплексу є використання альтернативного живлення. Із сонячними панелями можна забути про перебої з електропостачанням, вони забезпечать житло додатковим джерелом електроенергії, що дозволить і працювати, і жити у власному ритмі.Практичне планування та затишна атмосфера
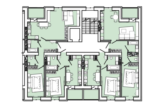
Проєкт передбачає 6-поверхову забудову, що створює сприятливе середовище для комфортного проживання. Забудовник наголошує: «Житловий комплекс «Хвоя» – це сучасний, продуманий до дрібниць проєкт. Невелика кількість поверхів створює атмосферу затишку та спокою. Ви не губитесь у безмежності, а відчуваєте себе частиною цілісного середовища».Хвойні насадження – не лише естетика, а й здоров'я
Комплекс отримав свою назву не випадково. Однією з основних особливостей ЖК «Хвоя» є озеленення території хвойними рослинами. «Вони є не лише приємним зеленим акцентом, а й справжнім помічником у створенні затишку та естетичного середовища поруч з житлом. Якщо ви мрієте прокидатися під шелест дерев та вдихати свіжий аромат хвойних рослин, тоді ЖК «Хвоя» – ваш вибір!» – наголошують забудовники.
Комерційна інфраструктура – для зручності повсякденного життя
Особливістю комплексу є наявність комерційних приміщень на перших поверхах. У компанії наголошують, що мешканці зможуть користуватися зручностями, не виїжджаючи за межі комплексу. Приміщення під магазини, кафе, аптеку та інші сервіси зроблять повсякденне життя набагато комфортнішим.
Крім того, житловий комплекс доступний для всіх охочих, адже пропонує різноманітні варіанти комерції в різних цінових категоріях. Це створює можливість для кожного купити приміщення своєї мрії, незалежно від рівня доходу. Розумна цінова політика і гнучкі умови фінансування роблять проєкт привабливим для бізнесів.
Локація: центр неподалік, природа – вдома
Ще одним важливим аспектом є розташування. «Житловий комплекс «Хвоя» розташовано в живописному районі, неподалік від центральної частини міста. Це місце поєднує в собі всі переваги заміського життя і зручний доступ до міської інфраструктури. Завдяки вигідному розташуванню мешканці комплексу можуть насолоджуватися спокоєм і тишею природи, не відмовляючись від благ, які пропонує активне міське життя».Безпечний простір з укриттям
В умовах воєнного часу питання безпеки – критично важливе. Тож особливою перевагою ЖК «Хвоя» є наявність укриття, що гарантує безпеку мешканців у разі надзвичайних ситуацій. Укриття розташоване в одному з підземних рівнів комплексу, воно відповідає всім необхідним стандартам і розраховане на значну кількість людей. Це рішення підвищує рівень довіри до забудовника, який враховує важливість безпеки у сучасних умовах. Мешканці комплексу можуть бути впевнені, що у разі загрози зможуть швидко дістатися до надійного укриття.
Партнерство з державною програмою «єВідновлення»
Особливої уваги заслуговує і соціальна відповідальність проєкту. Першу угоду на Волині про майбутній об'єкт нерухомості за державною програмою «єВідновлення», що спрямована на відновлення житла, пошкодженого під час війни, було підписано з представниками житлового комплексу «Хвоя» та харків'янкою, яка планує лишитись на Волині.
Контакти для довідок:
Офіційний сайт: www.vic.in.ua
Електронна пошта: [email protected]
Телефон: +380 67 777 84 48
*реклама
Підписуйтесь на наш Telegram-канал, аби першими дізнаватись найактуальніші новини Волині, України та світу
Саме таким проєктом став житловий комплекс «Хвоя», що нині реалізується на Волині. Це не просто житло, а життєвий простір, який враховує потреби сучасної людини в умовах нової української реальності.
Екологічність та енергонезалежність – вимога сучасності
На особливу увагу заслуговує система альтернативного енергопостачання.
«Житловий комплекс «Хвоя» вирізняється своєю екологічністю та зручністю для мешканців. Встановлені сонячні батареї забезпечують ефективне використання відновлюваної енергії, що дозволяє знижувати витрати на електроенергію та зменшувати вплив на навколишнє середовище. Завдяки сучасним технологіям мешканці комплексу можуть користуватися екологічно чистою енергією, що робить життя більш комфортним та стійким до змін клімату», – зазначає забудовник.
У компанії також додають, що на сьогодні є актуальним питання енергетичної свободи. Тому унікальністю комплексу є використання альтернативного живлення. Із сонячними панелями можна забути про перебої з електропостачанням, вони забезпечать житло додатковим джерелом електроенергії, що дозволить і працювати, і жити у власному ритмі.Практичне планування та затишна атмосфера
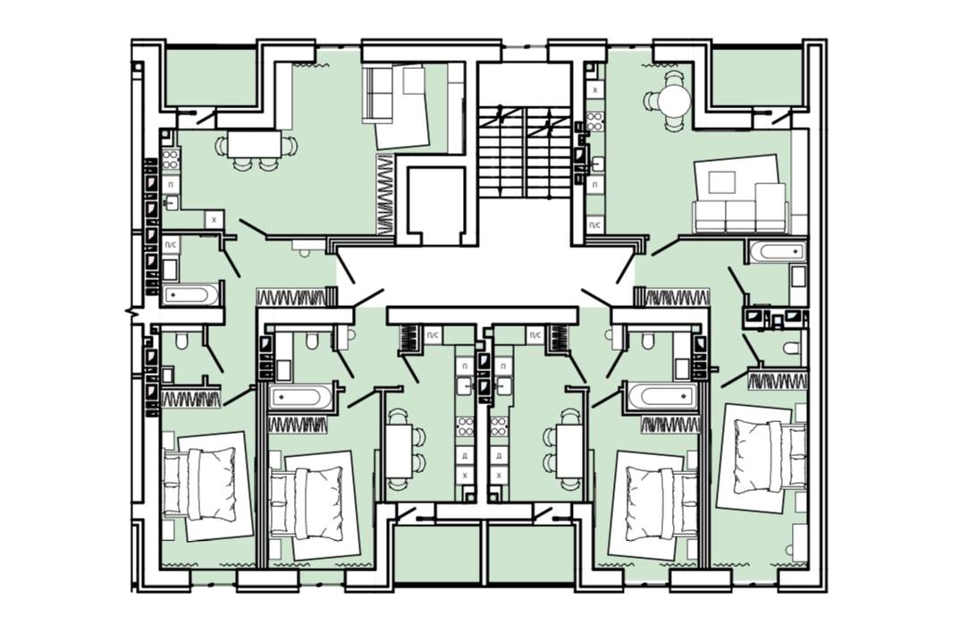
Проєкт передбачає 6-поверхову забудову, що створює сприятливе середовище для комфортного проживання. Забудовник наголошує: «Житловий комплекс «Хвоя» – це сучасний, продуманий до дрібниць проєкт. Невелика кількість поверхів створює атмосферу затишку та спокою. Ви не губитесь у безмежності, а відчуваєте себе частиною цілісного середовища».Хвойні насадження – не лише естетика, а й здоров'я
Комплекс отримав свою назву не випадково. Однією з основних особливостей ЖК «Хвоя» є озеленення території хвойними рослинами. «Вони є не лише приємним зеленим акцентом, а й справжнім помічником у створенні затишку та естетичного середовища поруч з житлом. Якщо ви мрієте прокидатися під шелест дерев та вдихати свіжий аромат хвойних рослин, тоді ЖК «Хвоя» – ваш вибір!» – наголошують забудовники.
Комерційна інфраструктура – для зручності повсякденного життя
Особливістю комплексу є наявність комерційних приміщень на перших поверхах. У компанії наголошують, що мешканці зможуть користуватися зручностями, не виїжджаючи за межі комплексу. Приміщення під магазини, кафе, аптеку та інші сервіси зроблять повсякденне життя набагато комфортнішим.
Крім того, житловий комплекс доступний для всіх охочих, адже пропонує різноманітні варіанти комерції в різних цінових категоріях. Це створює можливість для кожного купити приміщення своєї мрії, незалежно від рівня доходу. Розумна цінова політика і гнучкі умови фінансування роблять проєкт привабливим для бізнесів.
Локація: центр неподалік, природа – вдома
Ще одним важливим аспектом є розташування. «Житловий комплекс «Хвоя» розташовано в живописному районі, неподалік від центральної частини міста. Це місце поєднує в собі всі переваги заміського життя і зручний доступ до міської інфраструктури. Завдяки вигідному розташуванню мешканці комплексу можуть насолоджуватися спокоєм і тишею природи, не відмовляючись від благ, які пропонує активне міське життя».Безпечний простір з укриттям
В умовах воєнного часу питання безпеки – критично важливе. Тож особливою перевагою ЖК «Хвоя» є наявність укриття, що гарантує безпеку мешканців у разі надзвичайних ситуацій. Укриття розташоване в одному з підземних рівнів комплексу, воно відповідає всім необхідним стандартам і розраховане на значну кількість людей. Це рішення підвищує рівень довіри до забудовника, який враховує важливість безпеки у сучасних умовах. Мешканці комплексу можуть бути впевнені, що у разі загрози зможуть швидко дістатися до надійного укриття.
Партнерство з державною програмою «єВідновлення»
Особливої уваги заслуговує і соціальна відповідальність проєкту. Першу угоду на Волині про майбутній об'єкт нерухомості за державною програмою «єВідновлення», що спрямована на відновлення житла, пошкодженого під час війни, було підписано з представниками житлового комплексу «Хвоя» та харків'янкою, яка планує лишитись на Волині.
Контакти для довідок:
Офіційний сайт: www.vic.in.ua
Електронна пошта: [email protected]
Телефон: +380 67 777 84 48
*реклама
Знайшли помилку? Виділіть текст і натисніть
Підписуйтесь на наш Telegram-канал, аби першими дізнаватись найактуальніші новини Волині, України та світу
Коментарів: 4
Влад
Показати IP
22 Травня 2025 10:53
Один з найкращих житлових комплексів! Забудовники, особисто піклуються про кожного клієнта.
Клієнт
Показати IP
22 Травня 2025 13:44
Як усе продумано, до дрібниць!
Забудовник будує, як для себе особисто.
Якість, швидкість, екологічність , піклування про мешканців та навколишнє середовище.
Чудова інвестиція у майбутнє!
Рекомендую!!!
Лучанин
Показати IP
23 Травня 2025 04:19
Адреса?
Валентина
Показати IP
23 Травня 2025 18:21
М. Луцьк, вкл. Мамсурова, 1
12 травня: свята, події, факти. День екологічної освіти та Міжнародний день здоров’я рослин
Сьогодні 00:00
Сьогодні 00:00
У Японії відкрили лабораторію, де медичні експерименти проводять роботи
11 Травня 2026 23:42
11 Травня 2026 23:42
Більшість українців не бояться ШІ: 69% не вірять, що він забере їхню роботу
11 Травня 2026 23:24
11 Травня 2026 23:24
На Волині цьогоріч майже 2,7 тисячі осіб вперше отримали картку платника податків
11 Травня 2026 23:05
11 Травня 2026 23:05
Нова голова МЗС Угорщини обіцяє, що країна більше не шантажуватиме ЄС своїм вето
11 Травня 2026 22:46
11 Травня 2026 22:46
У волинській громаді сім жінок отримали почесне звання «Мати-героїня»
11 Травня 2026 22:27
11 Травня 2026 22:27
Судитимуть лучанина, який продавав автівки, привезені для ЗСУ
11 Травня 2026 22:08
11 Травня 2026 22:08
НАБУ і САП оголосили про підозру екскерівнику ОП Єрмаку
11 Травня 2026 21:48
11 Травня 2026 21:48
Викрили масштабну схему дезертирства, яка діяла на Волині та ще у трьох областях
11 Травня 2026 21:30
11 Травня 2026 21:30






Додати коментар:
УВАГА! Користувач www.volynnews.com має розуміти, що коментування на сайті створені аж ніяк не для політичного піару чи антипіару, зведення особистих рахунків, комерційної реклами, образ, безпідставних звинувачень та інших некоректних і негідних речей. Утім коментарі – це не редакційні матеріали, не мають попередньої модерації, суб’єктивні повідомлення і можуть містити недостовірну інформацію.