План мікрорайону в Луцьку відправили на доопрацювання. ПРОЕКТ ПЛАНУ
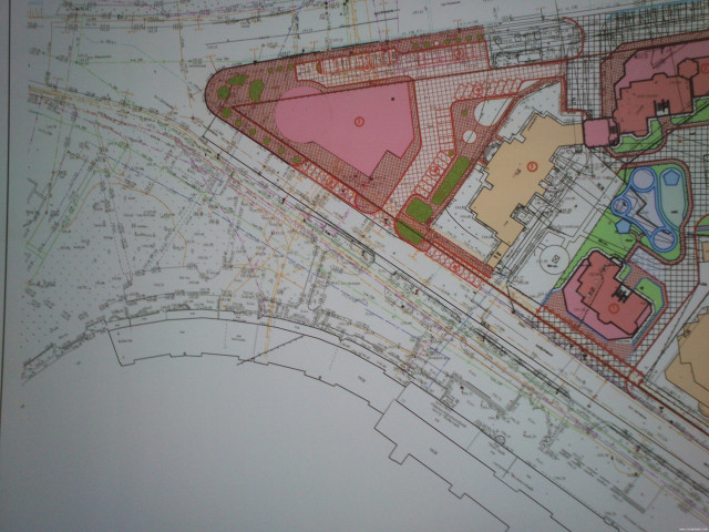
Відкорегований проект детального планування території житлового кварталу між вулицями Рівненська та Дубнівська у Луцьку представив на розгляд забудовник Олег Берекета.
Про це стало відомо під час засідання містобудівної ради 21 травня.
Основними проблемами, які виникли під час розгляду проекту, стали питання зведення тут житлових будинків, автостоянок, озеленення та огорожі багатоповерхівок високими парканами, що, мовляв, може вплинути на доступність об'єкта для рятувальників у випадку пожежі.
Так, за словами Олега Берекети, у мікрорайоні планують звести багатоквартирні житлові будинки з вдубовано-прибудованими офісами та торговими приміщеннями на вулицях Дубнівська, 13, Дубнівська, 15 та Рівненська, 15.
Та у членів містобудівної ради виникло питання, чи доцільним є будівництво тут житлових будинків. Мовляв, мікрорайон дуже загазований, адже з усіх трьох боків обмежений дорогами. До того ж, у проекті детального планування - багато стоянок для автомобілів і майже немає місця для «зелених» зон. Окрім того, треба передбачити й обслуговування цієї території і забезпечити соціальну інфраструктуру. У начальника управління архітектури та містобудування Луцької міськради Юрія Казмірука щодо цього виникло питання, чи зможе розташована неподалік ЗОШ №7 «прийняти» до себе дітей нових мешканців мікрорайону.
Тож, на думку більшості членів ради, цей «трикутничок» треба було зробити «максимально офісно-торговим» і мінімально використати цю територію для зведення житла.
«В нас є генеральний план забудови Луцька і його б мали врахувати. В нас не показано, що це зона багатоквартирної забудови. Тут передбачена зелена зона загального користування. Урбанізація не запланована в цьому місці», - підсумував головний художник міста Ярослав Матвіїв.
Однак, проблеми виникли із цим. Так, на Київському майдані, 11 згідно з проектом хочуть звести торгово-адміністративний комплекс. А поблизу нього теж треба облаштувати автостоянки.
Тож, члени містобудівної ради вирішили відправити проект детального планування цього мікрорайону на доопрацювання проектувальникам і забудовникам, врахувавши зауваження.
Підписуйтесь на наш Telegram-канал, аби першими дізнаватись найактуальніші новини Волині, України та світу
Про це стало відомо під час засідання містобудівної ради 21 травня.
Основними проблемами, які виникли під час розгляду проекту, стали питання зведення тут житлових будинків, автостоянок, озеленення та огорожі багатоповерхівок високими парканами, що, мовляв, може вплинути на доступність об'єкта для рятувальників у випадку пожежі.
Так, за словами Олега Берекети, у мікрорайоні планують звести багатоквартирні житлові будинки з вдубовано-прибудованими офісами та торговими приміщеннями на вулицях Дубнівська, 13, Дубнівська, 15 та Рівненська, 15.
Та у членів містобудівної ради виникло питання, чи доцільним є будівництво тут житлових будинків. Мовляв, мікрорайон дуже загазований, адже з усіх трьох боків обмежений дорогами. До того ж, у проекті детального планування - багато стоянок для автомобілів і майже немає місця для «зелених» зон. Окрім того, треба передбачити й обслуговування цієї території і забезпечити соціальну інфраструктуру. У начальника управління архітектури та містобудування Луцької міськради Юрія Казмірука щодо цього виникло питання, чи зможе розташована неподалік ЗОШ №7 «прийняти» до себе дітей нових мешканців мікрорайону.
Тож, на думку більшості членів ради, цей «трикутничок» треба було зробити «максимально офісно-торговим» і мінімально використати цю територію для зведення житла.
«В нас є генеральний план забудови Луцька і його б мали врахувати. В нас не показано, що це зона багатоквартирної забудови. Тут передбачена зелена зона загального користування. Урбанізація не запланована в цьому місці», - підсумував головний художник міста Ярослав Матвіїв.
Однак, проблеми виникли із цим. Так, на Київському майдані, 11 згідно з проектом хочуть звести торгово-адміністративний комплекс. А поблизу нього теж треба облаштувати автостоянки.
Тож, члени містобудівної ради вирішили відправити проект детального планування цього мікрорайону на доопрацювання проектувальникам і забудовникам, врахувавши зауваження.
Знайшли помилку? Виділіть текст і натисніть
Підписуйтесь на наш Telegram-канал, аби першими дізнаватись найактуальніші новини Волині, України та світу
Коментарів: 3
Петро
Показати IP
21 Травня 2013 14:14
чи зможе розташована неподалік ЗОШ №7 «прийняти» до себе дітей нових мешканців мікрорайону. ОДНОЗНАЧНО. Хто купить житло, той буде підвозити своїх дітей в більш престижніші навчальні заклади.
саша до Петро
Показати IP
10 Червня 2013 18:27
куда везеш своих дiтей там i будуй шо хочеш
саша
Показати IP
10 Червня 2013 18:25
а чи може шiснадцятиповерхiвка витримати будiвництво поряд?i чи хочуть мешканцi будинку стройку нiхто вам не дасть будувати побачите ми не виддамо своей територии
Останню дорогу встелили квітами: у Луцькій громаді попрощалися з Героєм Олександром Зіпертом
Сьогодні 16:12
Сьогодні 16:12
На Чернігівщині загинув військовий з Волині Віктор Гошко
Сьогодні 15:39
Сьогодні 15:39
«Потрібно бути ефективним на посаді», – т. в. о. голови Волинської ОВА про можливі кадрові зміни
Сьогодні 15:22
Сьогодні 15:22
У Рованцях хочуть розвантажити кільце на Боратин і ввімкнути світлофор, що не працює п’ять років
Сьогодні 14:49
Сьогодні 14:49
На Волині завершують аварійний ремонт доріг
Сьогодні 14:32
Сьогодні 14:32
Зупинилося серце ветерана війни з Волині Михайла Сютрика
Сьогодні 14:16
Сьогодні 14:16
«На ділянці кордону на Волині ми не спостерігаємо цього», – т. в. о. голови ОВА про загрозу нападу з Білорусі
Сьогодні 13:59
Сьогодні 13:59
На Харківщині поліг Герой з Шацької громади Анатолій Занюк
Сьогодні 13:43
Сьогодні 13:43
Рада продовжила воєнний стан до початку серпня
Сьогодні 13:26
Сьогодні 13:26









Додати коментар:
УВАГА! Користувач www.volynnews.com має розуміти, що коментування на сайті створені аж ніяк не для політичного піару чи антипіару, зведення особистих рахунків, комерційної реклами, образ, безпідставних звинувачень та інших некоректних і негідних речей. Утім коментарі – це не редакційні матеріали, не мають попередньої модерації, суб’єктивні повідомлення і можуть містити недостовірну інформацію.