Показали план добудови школи №13 у Луцьку
Наразі розпочали виготовлення проектно-кошторисної документації на добудову школи №13, - повідомили у мерії.
Про це йшлося під час брифінгу секретаря Луцької міськради та заступників Луцького міського голови 10 березня.
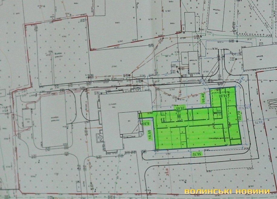
Заступник міського голови Андрій Киця нагадав, що розробили алгоритм роботи щодо добудови школи №13. З його слів, топографічну зйомку та вивчення комунікацій вже здійснили усіх комунікацій, тож посадовець продемонстрував план розміщення добудови корпусу школи. Там розмістять харчоблок, спортивний актовий зал та блок навчальних кабінетів. Вже розпочинають виготовлення проектно-кошторисної документації на добудову школи №13.
Нагадаємо, старе приміщення школи визнали непридатним для навчання. Нещодавно реєстрували електронну петицію щодо негайної добудови школи №13.
Підписуйтесь на наш Telegram-канал, аби першими дізнаватись найактуальніші новини Волині, України та світу
Про це йшлося під час брифінгу секретаря Луцької міськради та заступників Луцького міського голови 10 березня.
Заступник міського голови Андрій Киця нагадав, що розробили алгоритм роботи щодо добудови школи №13. З його слів, топографічну зйомку та вивчення комунікацій вже здійснили усіх комунікацій, тож посадовець продемонстрував план розміщення добудови корпусу школи. Там розмістять харчоблок, спортивний актовий зал та блок навчальних кабінетів. Вже розпочинають виготовлення проектно-кошторисної документації на добудову школи №13.
Нагадаємо, старе приміщення школи визнали непридатним для навчання. Нещодавно реєстрували електронну петицію щодо негайної добудови школи №13.
Знайшли помилку? Виділіть текст і натисніть
Підписуйтесь на наш Telegram-канал, аби першими дізнаватись найактуальніші новини Волині, України та світу
Коментарів: 0
Російська пропаганда пише про «розслідування» стосовно Олени Зеленської. НАБУ і САП це спростовують
Сьогодні 22:40
Сьогодні 22:40
Сиділи на лавці, бо дорослі не відчиняли: у Луцьку ввечері патрульні виявили на вулиці трьох дітей
Сьогодні 22:12
Сьогодні 22:12
У Луцьку за 21 млн продають будівлі «Укрпошти». Фото
Сьогодні 21:44
Сьогодні 21:44
Двоє загиблих і п'ятеро поранених: війська РФ за день майже 40 разів обстріляли Дніпропетровщину
Сьогодні 20:48
Сьогодні 20:48
На Волині підліток взяв мотоцикл дядька і потрапив у ДТП. Відповідати довелося матері
Сьогодні 20:20
Сьогодні 20:20
Зіткнулися автобус та легковик: у Луцькому районі – ДТП
Сьогодні 18:56
Сьогодні 18:56
В Україні стався землетрус: що відомо про наслідки
Сьогодні 18:28
Сьогодні 18:28


Додати коментар:
УВАГА! Користувач www.volynnews.com має розуміти, що коментування на сайті створені аж ніяк не для політичного піару чи антипіару, зведення особистих рахунків, комерційної реклами, образ, безпідставних звинувачень та інших некоректних і негідних речей. Утім коментарі – це не редакційні матеріали, не мають попередньої модерації, суб’єктивні повідомлення і можуть містити недостовірну інформацію.