У Луцьку реконструюють та добудують комерційний об’єкт
Реконструкцію з добудовою здійснять на вулиці Володимирській.
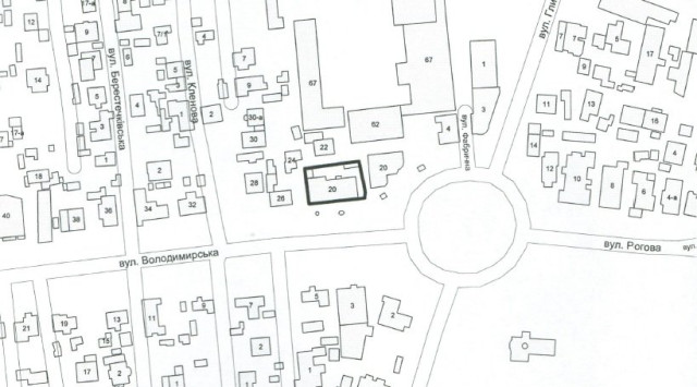
Містобудівні умови та обмеження для проектування реконструкції «Будівлі з приміщеннями аптеки, бару, пункту побутового обслуговування населення та «Пункту побутового обслуговування населення» під «Будівлю з приміщеннями бару, аптеки, магазинів, пункту побутового обслуговування населення» на вулиці Володимирській, 20 затвердили наказом управління містобудування та архітектури Луцької міськради від 2 вересня.
Замовником виступив громадянин Олександр Смолич. Цільове призначення ділянки площею 0,0661 гектара, що перебуває у приватній власності: комерційного призначення, категорія земель – землі житлової та громадської забудови, вид використання ділянки – для будівництва та обслуговування будівель торгівлі.
Гранично допустима висотність будівлі становить 13,6 метра, максимально допустимий відсоток забудови земельної ділянки – 70%. Мінімально допустимі відстані від об’єкта до існуючих будинків та запроектованих будівель та споруд на суміжних територіях – 9 метрів. Планувальні обмеження санітарно-гігієнічного характеру та природоохоронного характеру – санітарно-захисна зона виробничих об’єктів 1-3 класів шкідливості, другий пояс зони санітарної охорони водозаборів Луцького родовища підземних вод. Існуюча мережа каналізації з північно-східної сторони, що потрапляє в зону будівництва, підлягає перенесенню, згідно з проектом, погодженим з власником мережі.
Підписуйтесь на наш Telegram-канал, аби першими дізнаватись найактуальніші новини Волині, України та світу
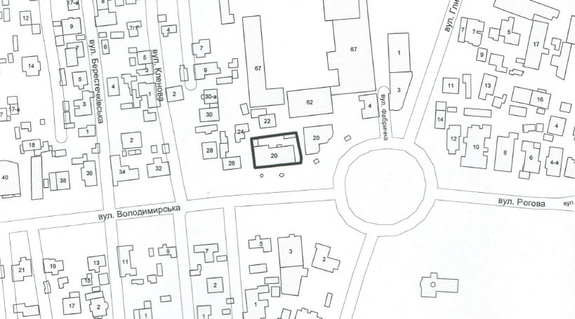
Містобудівні умови та обмеження для проектування реконструкції «Будівлі з приміщеннями аптеки, бару, пункту побутового обслуговування населення та «Пункту побутового обслуговування населення» під «Будівлю з приміщеннями бару, аптеки, магазинів, пункту побутового обслуговування населення» на вулиці Володимирській, 20 затвердили наказом управління містобудування та архітектури Луцької міськради від 2 вересня.
Замовником виступив громадянин Олександр Смолич. Цільове призначення ділянки площею 0,0661 гектара, що перебуває у приватній власності: комерційного призначення, категорія земель – землі житлової та громадської забудови, вид використання ділянки – для будівництва та обслуговування будівель торгівлі.
Гранично допустима висотність будівлі становить 13,6 метра, максимально допустимий відсоток забудови земельної ділянки – 70%. Мінімально допустимі відстані від об’єкта до існуючих будинків та запроектованих будівель та споруд на суміжних територіях – 9 метрів. Планувальні обмеження санітарно-гігієнічного характеру та природоохоронного характеру – санітарно-захисна зона виробничих об’єктів 1-3 класів шкідливості, другий пояс зони санітарної охорони водозаборів Луцького родовища підземних вод. Існуюча мережа каналізації з північно-східної сторони, що потрапляє в зону будівництва, підлягає перенесенню, згідно з проектом, погодженим з власником мережі.
Знайшли помилку? Виділіть текст і натисніть
Підписуйтесь на наш Telegram-канал, аби першими дізнаватись найактуальніші новини Волині, України та світу
Коментарів: 0
Лучан кличуть на «Теплі читання в замку» із Сергієм Жаданом
Сьогодні 09:51
Сьогодні 09:51
Зіткнулися авто і мотоцикл: у Луцьку на Соборності – ДТП
Сьогодні 09:17
Сьогодні 09:17
На Прикарпатті голова районного ТЦК разом зі спільниками катували військовозобов’язаних
Сьогодні 08:45
Сьогодні 08:45
«За інструментом треба доглядати так само, як на кухні за тарілками», – фортепіанний майстер з Луцька
Сьогодні 08:12
Сьогодні 08:12
Правило двох стін більше не працює: топ найбезпечніших укриттів під час ракетних ударів
Сьогодні 07:45
Сьогодні 07:45
Скільки селище на Волині витратить на озеленення
Сьогодні 07:17
Сьогодні 07:17



Додати коментар:
УВАГА! Користувач www.volynnews.com має розуміти, що коментування на сайті створені аж ніяк не для політичного піару чи антипіару, зведення особистих рахунків, комерційної реклами, образ, безпідставних звинувачень та інших некоректних і негідних речей. Утім коментарі – це не редакційні матеріали, не мають попередньої модерації, суб’єктивні повідомлення і можуть містити недостовірну інформацію.