Сусідські протести: будівельні бажання&збудовані реальності
В Інформаційне агентство Волинські Новини звернулися представники об'єднань співвласників двох багатоповерхівок за адресами Київський майдан, 6 та вулиця Дубнівська, 15. Між цими будинками є земельна ділянка, розташована за адресою Дубнівська, 13, де заплановано зведення десятиповерхівки.
Мешканці, посилаючись на вимоги будівельних норм та санітарних правил, переконують: така забудова, як і сам план детального планування території, який ухвалив виконавчий комітет міської ради, суперечить нормам будівництва та може порушити їхні права. Забудовник коментує, що має всю документацію, а після освоєння ділянки там буде порядок та чистота, а не чагарники, як нині. У міській раді поки що із мешканцями ведуть тільки листування, яке ті називають звичайнісінькими чиновницькими відписками.
ДЕСЯТЬ ПОВЕРХІВ НА ДЕВ’ЯТИ СОТКАХ
Мешканці розуміють, що земельна ділянка на Дубнівській, 13 (площа 0,0927 га) перебуває у приватних руках. І власник має право розпоряджатися нею на власний розсуд. Утім, додають, це не має порушувати прав сусідів, тобто їхніх.
«Відповідно до будівельних та санітарних норм, збудувати такий будинок на малій ділянці неможливо: абсолютно ніде розмістити ні дитячі, ні господарські майданчики, ні місця для паркування, ані навіть смітники», – переконують місцеві. Кажуть, навіть автівки не буде як розвернути.Їх турбує, чи дозволить площа ділянки розмістити елементи благоустрою, паркувальні місця для автомобілів мешканців, смітники відповідно до норм, чи буде витримано мінімальний побутовий розрив із сусіднім будинком, аби не було загрози технічному стану будівель.
ІГНОРУВАННЯ МЕРІЇ
На одному із сайтів оголошень мешканці випадково побачили, що земельна ділянка між їхніми будинками продається, а на її місці планують будівництво. Варто зазначити, що ця територія вже огороджена металевим парканом. Тож вирішили занести до міської ради (а саме – віце-меру Луцька Тарасу Яковлеву) колективне звернення за підписами понад 200 жителів з обох будинків, у якому висловили свої побоювання щодо будівництва.
«На прийомі Яковлев був здивований і сказав, що там ніде будувати. Але нам здається, що тут віце-мер трохи злукавив: за півтора року перед цим він особисто голосував за затвердження детального плану території кварталу між вулицями Рівненською та Дубнівською, яким, усупереч будівельним та санітарним нормам, передбачалося це будівництво», – зазначають у листі мешканці. Тоді ж, кажуть, зателефонували у відділ архітектури та містобудування, аби з'ясувати, чи є містобудівні документи. Однозначної відповіді на той момент не було.
Копії аналогічного звернення вони занесли не лише в міську раду, а й надіслали до відділу Державного архітектурно-будівельного контролю Луцької міської ради та постійної комісії генерального планування, будівництва, архітектури та благоустрою.
Цікаво, що спочатку в мерії за підписом першого заступника міського голови Тараса Яковлева повідомили, що згаданих містобудівних умов та обмежень у них немає. Заявники кажуть, що у процесі листування управлінці надавали неповні дані, або ж не по суті, а іноді й узагалі не надавали, поки їм не погрожували судовим позовом. Цим, на думку мешканців, було порушено їхні права щодо доступу до публічної інформації.
«Остаточно ми зрозуміли, що допомоги від міської влади чекати не варто, не отримавши на наше колективне звернення (від 22.11.2016 р.) після закінчення місячного терміну, що потрібен відповідно до Закону України «Про звернення громадян» для розгляду заяв, жодної відповіді від жодного чиновника», – стверджують заявники.
Щоправда, їх запросили на засідання депутатської комісії, де, зрештою, порадили звертатися в державну архітектурно-будівельну інспекцію щодо проведення позапланової перевірки законності видачі містобудівних умов та обмежень замість того, щоб переслати звернення за належністю.
«Якщо спочатку в нас ще лишалися сумніви, то тепер ми твердо переконані, що представники міської влади не просто халатно ставляться до своїх обов’язків, і цілком свідомо покривають подібні порушення», – додають мешканці у листі.
ЗАБУДОВНИК ПЕРЕКОНУЄ: УСІМ БУДЕ КРАЩЕ
Аби почути думку забудовника, ми звернулися до представників ТзОВ «ХК «Єврохолдінг», яким належить земля на вулиці Дубнівській, 13. Вони повідомили, що на цій ділянці справді заплановано будівництво багатоповерхового житлового будинку з вбудовано-прибудованими приміщеннями (торговими).
На запитання, чи є дійсними видані містобудівні умови, в «Єврохолдінгу» відповіли: «Так, проект розробляли на підставі дійсних містобудівних умов та обмежень».
Про те, що спротив мешканців є, у компанії також знають. Відповідаючи на питання, чи пробувала компанія зустрітися та порозумітися із жителями Київського майдану та Дубнівської, аби донести власну позицію, у забудовника відповіли:
«Так. Ми попередньо зустрічалися з жителями будинків, є протоколи рішень. Крім того, обговорювали детальний план території. Як результат, саме будівництво будинку – це уже спільна робота власника земельної ділянки з жителями. Адже, звівши споруду, власник тим самим замість смітника й місця збору бомжів робить гарний будинок з благоустроєм території та дитячими майданчиками, якими зможуть користуватися діти жителів вказаних вище будинків. На підтвердження цього «Єврохолдінгом» уже викуплено гаражі, що розташовані біля бойлерної, на місці яких і плануємо розмістити ці дитячі та спортивні майданчики».
Цікаво, що на дошках оголошень у мережі інтернет можна знайти повідомлення про продаж ділянки за адресою Дубнівська, 13. Забудовник цього не приховує, оскільки має «певні перенавантаження в роботі».
«Були покупці, але вагаємося. Хочеться завершити проект самим, оскільки будуємо якісно і гарно. Однак, якщо нам будуть необґрунтовано заважати робити добру справу, то продамо тим, хто має час на розв’язання спорів. У нас є що будувати без цього. Так що все залежить від жителів сусідніх будинків», – кажуть у «Єврохолдінгу» та додають, що готові йти на компроміс «у межах розумного».
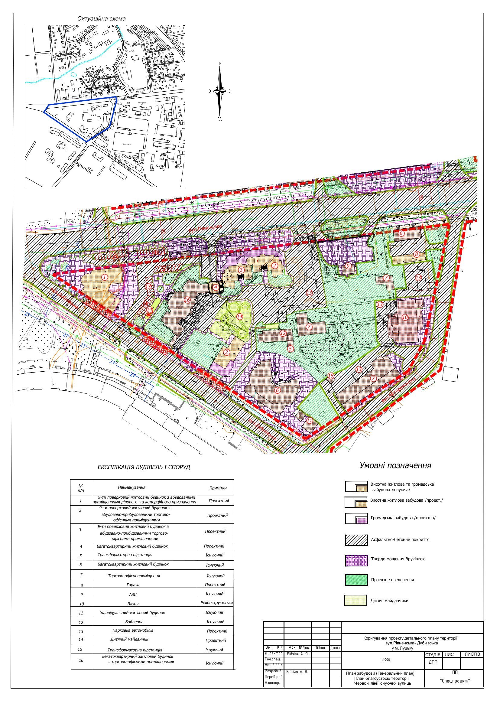
ДЕТАЛЬНИЙ ПЛАН ТЕРИТОРІЇ
Детальний план зазначеної території виконавчий комітет затвердив навесні 2015 року. Рішення про початок розробки ДПТ ухвалювали ще в 2012 році.
Як інформував тоді керівник управління містобудування та архітектури Леонід Герасимюк, документ кілька разів переробляли. Тоді він запевнив комітет, що усі зауваження об'єднань співвласників багатоквартирних будинків будуть враховані під час видачі містобудівних умов.
Це ж було прописано у самому проекті рішення: «Доручити управлінню містобудування та архітектури міської ради (Герасимюк Л.В.) під час видачі містобудівних умов та обмежень на будівництво багатоповерхових житлових будинків на території житлового кварталу між вул. Рівненською та вул. Дубнівською передбачити вимоги щодо погодження плану організації будівельних робіт з об’єднанням співвласників багатоквартирного будинку «Наш дім» на Київському майдані, 6 та об’єднанням співвласників багатоквартирного будинку «Дубнівська - 15» на вул. Дубнівській, 15, а також щодо проведення експертизи технічного стану житлового будинку на Київському майдані, 6».Однак щодо того, які саме це були зауваження під час затвердження плану, у членів виконавчого комітету виникли запитання. Адже сама суть зауважень була некоректно вписана у протоколі засідання комісії, яка перед цим розглядала зауваження місцевих. У пояснювальній записці до проекту рішення зазначено, що після коригування проекту детального плану території житлового району у виконавчі органи міської ради пропозиції не надходили. Мешканці пояснюють: це тому, що на сайті міськради не було, як того вимагає закон «Про регулювання містобудівної діяльності», повідомлення про початок процедури розгляду та врахування пропозицій громадськості щодо цього проекту містобудівної документації.
Перестороги щодо того, що з забудовою можуть бути проблеми, тоді висловлював міський голова Микола Романюк: «Це не перше будівництво, яке вилазить на поверхню. Треба нам з вами звітувати за ці всі рішення, які було ухвалено».
«Будівельні норми витримані повністю. Зауважень з точки зору архітектури немає», – зрештою підсумував тоді Герасимюк.
До слова, цю позицію він підтримує і досі: «Позиція управління містобудування і архітектури така, як позиція виконавчого комітету – там затверджений детальний план, згідно з ним цей будинок запроектований. Він там і був запроектований від початку. Розрив, що там лишився, все одно має бути якось забудований, тому що місто не має багато вільних територій. Оскільки детальний план затверджений, його ніхто не скасував, потрібно вирішувати далі питання. Були дебати між одним та іншим ОСББ, вони нібито узгодили, але потім знову виник конфлікт. А будувати у будь-якому випадку треба».
Якщо подивитися на затверджений детальний план території, у проекті справді зведення кількох багатоповерхівок: не лише за адресою Дубнівська, 13, а й трьох із боку Рівненської та одного на куті розвилки вулиць Дубнівської та Рівненської, на ділянці, яка належить до зелених насаджень загального користування (якщо поглянути на Генплан). Та на всі ці споруди передбачені лише два невеликі дитячі майданчики та жодного спортивного чи для господарських потреб.
***
У цій ситуації арбітром між забудовником та лучанами мала б стати міська рада, аби дати сторонам почути одне одного та дійти компромісу. Втім скидається на те, що тут чекають, доки проблема набуде розголосу та стане об'єктом багатогодинних дискусій у сесійній залі.
Підписуйтесь на наш Telegram-канал, аби першими дізнаватись найактуальніші новини Волині, України та світу
Мешканці, посилаючись на вимоги будівельних норм та санітарних правил, переконують: така забудова, як і сам план детального планування території, який ухвалив виконавчий комітет міської ради, суперечить нормам будівництва та може порушити їхні права. Забудовник коментує, що має всю документацію, а після освоєння ділянки там буде порядок та чистота, а не чагарники, як нині. У міській раді поки що із мешканцями ведуть тільки листування, яке ті називають звичайнісінькими чиновницькими відписками.
ДЕСЯТЬ ПОВЕРХІВ НА ДЕВ’ЯТИ СОТКАХ
Мешканці розуміють, що земельна ділянка на Дубнівській, 13 (площа 0,0927 га) перебуває у приватних руках. І власник має право розпоряджатися нею на власний розсуд. Утім, додають, це не має порушувати прав сусідів, тобто їхніх.
«Відповідно до будівельних та санітарних норм, збудувати такий будинок на малій ділянці неможливо: абсолютно ніде розмістити ні дитячі, ні господарські майданчики, ні місця для паркування, ані навіть смітники», – переконують місцеві. Кажуть, навіть автівки не буде як розвернути.Їх турбує, чи дозволить площа ділянки розмістити елементи благоустрою, паркувальні місця для автомобілів мешканців, смітники відповідно до норм, чи буде витримано мінімальний побутовий розрив із сусіднім будинком, аби не було загрози технічному стану будівель.
ІГНОРУВАННЯ МЕРІЇ
На одному із сайтів оголошень мешканці випадково побачили, що земельна ділянка між їхніми будинками продається, а на її місці планують будівництво. Варто зазначити, що ця територія вже огороджена металевим парканом. Тож вирішили занести до міської ради (а саме – віце-меру Луцька Тарасу Яковлеву) колективне звернення за підписами понад 200 жителів з обох будинків, у якому висловили свої побоювання щодо будівництва.
«На прийомі Яковлев був здивований і сказав, що там ніде будувати. Але нам здається, що тут віце-мер трохи злукавив: за півтора року перед цим він особисто голосував за затвердження детального плану території кварталу між вулицями Рівненською та Дубнівською, яким, усупереч будівельним та санітарним нормам, передбачалося це будівництво», – зазначають у листі мешканці. Тоді ж, кажуть, зателефонували у відділ архітектури та містобудування, аби з'ясувати, чи є містобудівні документи. Однозначної відповіді на той момент не було.
Копії аналогічного звернення вони занесли не лише в міську раду, а й надіслали до відділу Державного архітектурно-будівельного контролю Луцької міської ради та постійної комісії генерального планування, будівництва, архітектури та благоустрою.
Цікаво, що спочатку в мерії за підписом першого заступника міського голови Тараса Яковлева повідомили, що згаданих містобудівних умов та обмежень у них немає. Заявники кажуть, що у процесі листування управлінці надавали неповні дані, або ж не по суті, а іноді й узагалі не надавали, поки їм не погрожували судовим позовом. Цим, на думку мешканців, було порушено їхні права щодо доступу до публічної інформації.
«Остаточно ми зрозуміли, що допомоги від міської влади чекати не варто, не отримавши на наше колективне звернення (від 22.11.2016 р.) після закінчення місячного терміну, що потрібен відповідно до Закону України «Про звернення громадян» для розгляду заяв, жодної відповіді від жодного чиновника», – стверджують заявники.
Щоправда, їх запросили на засідання депутатської комісії, де, зрештою, порадили звертатися в державну архітектурно-будівельну інспекцію щодо проведення позапланової перевірки законності видачі містобудівних умов та обмежень замість того, щоб переслати звернення за належністю.
«Якщо спочатку в нас ще лишалися сумніви, то тепер ми твердо переконані, що представники міської влади не просто халатно ставляться до своїх обов’язків, і цілком свідомо покривають подібні порушення», – додають мешканці у листі.
ЗАБУДОВНИК ПЕРЕКОНУЄ: УСІМ БУДЕ КРАЩЕ
Аби почути думку забудовника, ми звернулися до представників ТзОВ «ХК «Єврохолдінг», яким належить земля на вулиці Дубнівській, 13. Вони повідомили, що на цій ділянці справді заплановано будівництво багатоповерхового житлового будинку з вбудовано-прибудованими приміщеннями (торговими).
На запитання, чи є дійсними видані містобудівні умови, в «Єврохолдінгу» відповіли: «Так, проект розробляли на підставі дійсних містобудівних умов та обмежень».
Про те, що спротив мешканців є, у компанії також знають. Відповідаючи на питання, чи пробувала компанія зустрітися та порозумітися із жителями Київського майдану та Дубнівської, аби донести власну позицію, у забудовника відповіли:
«Так. Ми попередньо зустрічалися з жителями будинків, є протоколи рішень. Крім того, обговорювали детальний план території. Як результат, саме будівництво будинку – це уже спільна робота власника земельної ділянки з жителями. Адже, звівши споруду, власник тим самим замість смітника й місця збору бомжів робить гарний будинок з благоустроєм території та дитячими майданчиками, якими зможуть користуватися діти жителів вказаних вище будинків. На підтвердження цього «Єврохолдінгом» уже викуплено гаражі, що розташовані біля бойлерної, на місці яких і плануємо розмістити ці дитячі та спортивні майданчики».
Цікаво, що на дошках оголошень у мережі інтернет можна знайти повідомлення про продаж ділянки за адресою Дубнівська, 13. Забудовник цього не приховує, оскільки має «певні перенавантаження в роботі».
«Були покупці, але вагаємося. Хочеться завершити проект самим, оскільки будуємо якісно і гарно. Однак, якщо нам будуть необґрунтовано заважати робити добру справу, то продамо тим, хто має час на розв’язання спорів. У нас є що будувати без цього. Так що все залежить від жителів сусідніх будинків», – кажуть у «Єврохолдінгу» та додають, що готові йти на компроміс «у межах розумного».
ДЕТАЛЬНИЙ ПЛАН ТЕРИТОРІЇ
Детальний план зазначеної території виконавчий комітет затвердив навесні 2015 року. Рішення про початок розробки ДПТ ухвалювали ще в 2012 році.
Як інформував тоді керівник управління містобудування та архітектури Леонід Герасимюк, документ кілька разів переробляли. Тоді він запевнив комітет, що усі зауваження об'єднань співвласників багатоквартирних будинків будуть враховані під час видачі містобудівних умов.
Це ж було прописано у самому проекті рішення: «Доручити управлінню містобудування та архітектури міської ради (Герасимюк Л.В.) під час видачі містобудівних умов та обмежень на будівництво багатоповерхових житлових будинків на території житлового кварталу між вул. Рівненською та вул. Дубнівською передбачити вимоги щодо погодження плану організації будівельних робіт з об’єднанням співвласників багатоквартирного будинку «Наш дім» на Київському майдані, 6 та об’єднанням співвласників багатоквартирного будинку «Дубнівська - 15» на вул. Дубнівській, 15, а також щодо проведення експертизи технічного стану житлового будинку на Київському майдані, 6».Однак щодо того, які саме це були зауваження під час затвердження плану, у членів виконавчого комітету виникли запитання. Адже сама суть зауважень була некоректно вписана у протоколі засідання комісії, яка перед цим розглядала зауваження місцевих. У пояснювальній записці до проекту рішення зазначено, що після коригування проекту детального плану території житлового району у виконавчі органи міської ради пропозиції не надходили. Мешканці пояснюють: це тому, що на сайті міськради не було, як того вимагає закон «Про регулювання містобудівної діяльності», повідомлення про початок процедури розгляду та врахування пропозицій громадськості щодо цього проекту містобудівної документації.
Перестороги щодо того, що з забудовою можуть бути проблеми, тоді висловлював міський голова Микола Романюк: «Це не перше будівництво, яке вилазить на поверхню. Треба нам з вами звітувати за ці всі рішення, які було ухвалено».
«Будівельні норми витримані повністю. Зауважень з точки зору архітектури немає», – зрештою підсумував тоді Герасимюк.
До слова, цю позицію він підтримує і досі: «Позиція управління містобудування і архітектури така, як позиція виконавчого комітету – там затверджений детальний план, згідно з ним цей будинок запроектований. Він там і був запроектований від початку. Розрив, що там лишився, все одно має бути якось забудований, тому що місто не має багато вільних територій. Оскільки детальний план затверджений, його ніхто не скасував, потрібно вирішувати далі питання. Були дебати між одним та іншим ОСББ, вони нібито узгодили, але потім знову виник конфлікт. А будувати у будь-якому випадку треба».
Якщо подивитися на затверджений детальний план території, у проекті справді зведення кількох багатоповерхівок: не лише за адресою Дубнівська, 13, а й трьох із боку Рівненської та одного на куті розвилки вулиць Дубнівської та Рівненської, на ділянці, яка належить до зелених насаджень загального користування (якщо поглянути на Генплан). Та на всі ці споруди передбачені лише два невеликі дитячі майданчики та жодного спортивного чи для господарських потреб.
***
У цій ситуації арбітром між забудовником та лучанами мала б стати міська рада, аби дати сторонам почути одне одного та дійти компромісу. Втім скидається на те, що тут чекають, доки проблема набуде розголосу та стане об'єктом багатогодинних дискусій у сесійній залі.
Знайшли помилку? Виділіть текст і натисніть
Підписуйтесь на наш Telegram-канал, аби першими дізнаватись найактуальніші новини Волині, України та світу
Коментарів: 1
Ігор луцький
Показати IP
17 Лютого 2017 14:19
Вже напевно половину хабарів,за позитивне вирішення питання будівництва, чиновники та депутати потратили,а ви хочете добитись справедливості?
Біля Луцька через замикання мережі горів будинок
Сьогодні 11:06
Сьогодні 11:06
Росія вдарила по Білій Церкві ракетою «Орєшник». Що відомо
Сьогодні 10:37
Сьогодні 10:37
Авто перекинулося на дах: у Луцьку судили водійку, яка п’яною на Ветеранів влетіла у стовпчики
Сьогодні 10:08
Сьогодні 10:08
Комбінований удар РФ по Києву: є влучання в будинки, одна людина загинула та 21 постраждала
Сьогодні 08:12
Сьогодні 08:12
Україна навчилась збивати 97% «Шахедів», – WSJ
Сьогодні 07:45
Сьогодні 07:45
У волинському селі за 100 тисяч продають ФАП. Фото
Сьогодні 07:17
Сьогодні 07:17






Додати коментар:
УВАГА! Користувач www.volynnews.com має розуміти, що коментування на сайті створені аж ніяк не для політичного піару чи антипіару, зведення особистих рахунків, комерційної реклами, образ, безпідставних звинувачень та інших некоректних і негідних речей. Утім коментарі – це не редакційні матеріали, не мають попередньої модерації, суб’єктивні повідомлення і можуть містити недостовірну інформацію.