У центрі Луцька не дозволили змінити призначення ділянки
Змінити призначення ділянки у центрі міста з присадибної на офісні приміщення для підприємництва не дозволили депутати міськради.
Про це йшлося під час пленарного засідання 66-ї сесії Луцької міськради 27 листопада.
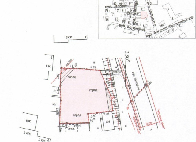
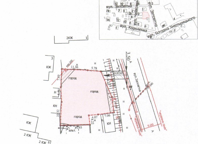
Депутати розглянули проєкт рішення про затвердження громадянину Юрію Малеку проєкту землеустрою щодо відведення земельної ділянки та зміну її цільового призначення для будівництва та обслуговування будівель ринкової інфраструктури (адміністративних будинків, офісних приміщень та інших будівель громадської забудови, які використовуються для здійснення підприємницької та іншої діяльності, пов’язаної з отриманням прибутку) на вулиці Заповітній, 1а.
Йшлося про ділянку площею 0,0461 гектара у центрі міста поблизу ДЮСШ, між вулицями Шевченка та Богдана Хмельницького. Раніше члени земельної комісії міськради рекомендували не підтримувати проєкт рішення, оскільки громадянин отримував ділянку як присадибну, а тепер планує розмістити на ній будівлі для підприємницької діяльності.
Підписуйтесь на наш Telegram-канал, аби першими дізнаватись найактуальніші новини Волині, України та світу
Про це йшлося під час пленарного засідання 66-ї сесії Луцької міськради 27 листопада.
Депутати розглянули проєкт рішення про затвердження громадянину Юрію Малеку проєкту землеустрою щодо відведення земельної ділянки та зміну її цільового призначення для будівництва та обслуговування будівель ринкової інфраструктури (адміністративних будинків, офісних приміщень та інших будівель громадської забудови, які використовуються для здійснення підприємницької та іншої діяльності, пов’язаної з отриманням прибутку) на вулиці Заповітній, 1а.
Йшлося про ділянку площею 0,0461 гектара у центрі міста поблизу ДЮСШ, між вулицями Шевченка та Богдана Хмельницького. Раніше члени земельної комісії міськради рекомендували не підтримувати проєкт рішення, оскільки громадянин отримував ділянку як присадибну, а тепер планує розмістити на ній будівлі для підприємницької діяльності.
Знайшли помилку? Виділіть текст і натисніть
Підписуйтесь на наш Telegram-канал, аби першими дізнаватись найактуальніші новини Волині, України та світу
Коментарів: 1
Пецька
Показати IP
28 Листопада 2019 18:16
Будувати в заповіднику можна, а з города зробити будинок в центрі міста - ні.
Ефективний засіб проти пітливості ніг: поради подолога
Сьогодні 11:45
Сьогодні 11:45
У Турійську BMW збив пішохода
Сьогодні 11:28
Сьогодні 11:28
Росіяни атакували Україну 155 дронами, є поранені в Херсоні
Сьогодні 10:55
Сьогодні 10:55
Сьогодні один з мікрорайонів Луцька буде без води
Сьогодні 10:23
Сьогодні 10:23
Економічна криза на Кубі сягнула критичного рівня, – ЗМІ
Сьогодні 10:06
Сьогодні 10:06
На Волині через необережність людей за добу сталося 10 пожеж
Сьогодні 09:50
Сьогодні 09:50


Додати коментар:
УВАГА! Користувач www.volynnews.com має розуміти, що коментування на сайті створені аж ніяк не для політичного піару чи антипіару, зведення особистих рахунків, комерційної реклами, образ, безпідставних звинувачень та інших некоректних і негідних речей. Утім коментарі – це не редакційні матеріали, не мають попередньої модерації, суб’єктивні повідомлення і можуть містити недостовірну інформацію.