Замість городів – будівлі для підприємництва: лучанину не дозволили змінити призначення ділянки
Замість городів – будівлі для підприємницької діяльності: власник ділянки у центрі міста просить дозволу на зміну її функціонального призначення.
Про це йшлося під час засідання постійної комісії Луцької міськради з питань земельних відносин та земельного кадастру 20 листопада.
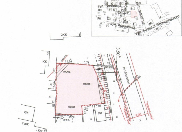
Депутати розглянули проєкт рішення про затвердження громадянину Юрію Малеку проєкту землеустрою щодо відведення земельної ділянки та зміну її цільового призначення для будівництва та обслуговування будівель ринкової інфраструктури (адміністративних будинків, офісних приміщень та інших будівель громадської забудови, які використовуються для здійснення підприємницької та іншої діяльності, пов’язаної з отриманням прибутку) на вулиці Заповітній, 1-а.
Йдеться про ділянку площею 0,0461 гектара у центрі міста поблизу ДЮСШ, між вулицями Шевченка та Богдана Хмельницького. Як повідомив начальник управління земельних ресурсів Сергій Шабала, ділянка перебуває у приватній власності. Голова комісії Олександр Козлюк зауважив, що утримається під час голосування, оскільки ділянку власник отримував як присадибну.
У підсумку, члени комісії рекомендували не підтримувати проєкт рішення.
Підписуйтесь на наш Telegram-канал, аби першими дізнаватись найактуальніші новини Волині, України та світу
Про це йшлося під час засідання постійної комісії Луцької міськради з питань земельних відносин та земельного кадастру 20 листопада.
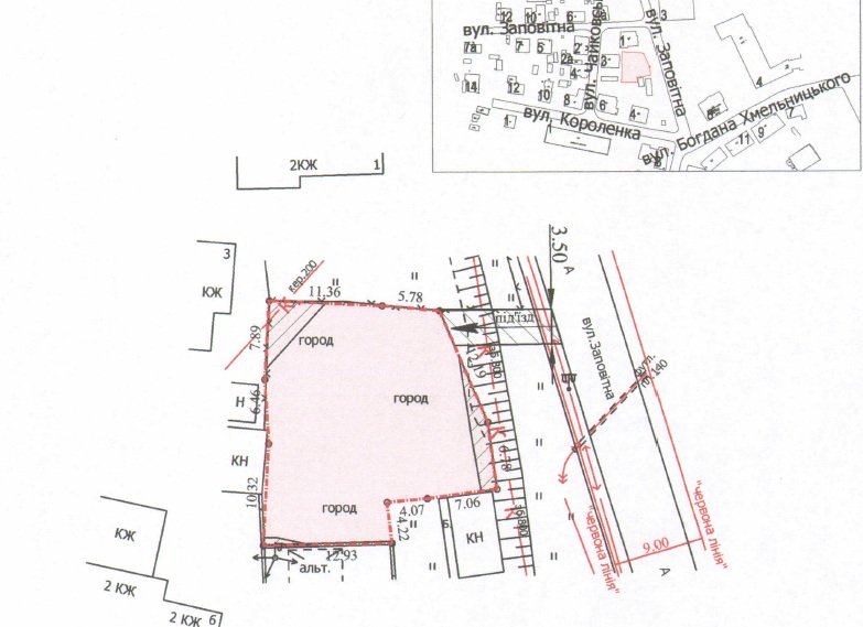
Депутати розглянули проєкт рішення про затвердження громадянину Юрію Малеку проєкту землеустрою щодо відведення земельної ділянки та зміну її цільового призначення для будівництва та обслуговування будівель ринкової інфраструктури (адміністративних будинків, офісних приміщень та інших будівель громадської забудови, які використовуються для здійснення підприємницької та іншої діяльності, пов’язаної з отриманням прибутку) на вулиці Заповітній, 1-а.
Йдеться про ділянку площею 0,0461 гектара у центрі міста поблизу ДЮСШ, між вулицями Шевченка та Богдана Хмельницького. Як повідомив начальник управління земельних ресурсів Сергій Шабала, ділянка перебуває у приватній власності. Голова комісії Олександр Козлюк зауважив, що утримається під час голосування, оскільки ділянку власник отримував як присадибну.
У підсумку, члени комісії рекомендували не підтримувати проєкт рішення.
Знайшли помилку? Виділіть текст і натисніть
Підписуйтесь на наш Telegram-канал, аби першими дізнаватись найактуальніші новини Волині, України та світу
Коментарів: 0
Загинув 18-річний мотоцикліст: деталі ДТП у Ковелі
Сьогодні 13:57
Сьогодні 13:57
У США сталась стрілянина на вечірці біля озера, 10 поранених
Сьогодні 13:25
Сьогодні 13:25
Ефективний засіб проти пітливості ніг: поради подолога
Сьогодні 11:45
Сьогодні 11:45
У Турійську BMW збив пішохода
Сьогодні 11:28
Сьогодні 11:28


Додати коментар:
УВАГА! Користувач www.volynnews.com має розуміти, що коментування на сайті створені аж ніяк не для політичного піару чи антипіару, зведення особистих рахунків, комерційної реклами, образ, безпідставних звинувачень та інших некоректних і негідних речей. Утім коментарі – це не редакційні матеріали, не мають попередньої модерації, суб’єктивні повідомлення і можуть містити недостовірну інформацію.