Дитсадок чи житло: проект плану території у Луцьку може спричинити конфлікт
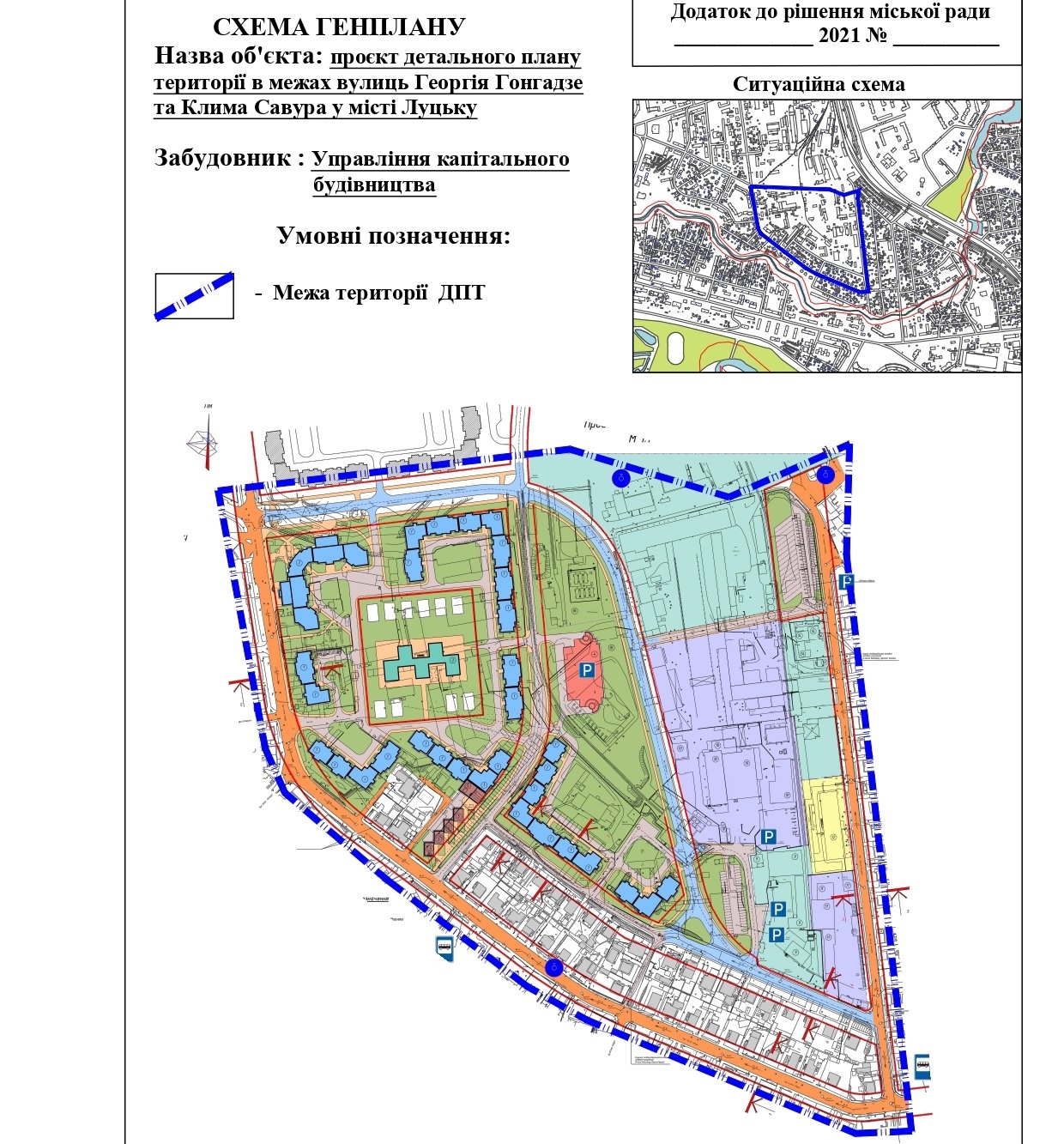
У Луцьку планують затвердити детальний план території в межах вулиць Георгія Гонгадзе та Клима Савура. Проект уже поданий на розгляд депутатів і проходить комісійний розгляд. Однак не виключено, що з його реалізацією можуть виникнути труднощі. Адже згідно з проектом, там має бути дитячий садочок, от тільки земля, де його пропонують звести – в приватній власності будівельної компанії, яка запланувала там багатоквартирну житлову забудову. А заручниками ситуації може стати інше підприємство, яке прагне розширити своє виробництво.
Про це стало відомо під час засідання постійної комісії міської ради з питань генерального планування, будівництва, архітектури та благоустрою 18 березня.
Нагадаємо, під час сесії наприкінці 2019 року луцькі обранці громади уже розглядали проект рішення про надання дозволу на розроблення проєкту детального плану території в межах вулиць Георгія Гонгадзе та Клима Савура в місті Луцьку. Однак, хоч обранці громади і проглосували «за» питання у більшості, на той момент був прийнятий тимчасовий мораторій на нові будівництва на території міста до затвердження генерального плану, який вже зовсім скоро має з’явитись у місті.
Серед запланованих об’єктів – побудова нового виробничого блоку підприємства із пошиття жіночої білизни ТзОВ «Жасмін Лінжері». І хоч до ініціативи підприємства у депутатів питань не виникло, але до самого документу зауважень було багато.
Зокрема, з’ясувалося, що цей же документ зачіпляє інтереси іншого підприємства – відомого луцького забудовника. Адже на цій території є земля, яка перебуває у його власності. Йдеться про «Луцьксантехмонтаж № 536», яке надіслало на адресу міськради листа щодо цього документу. Річ у тім, що на частині ділянки підприємства, де планується житлова забудова, у детальному плані території проектанти розмістили дитячий садок. Члени комісії зазначили: навряд чи забудовник зведе дитсадок на своїй території, тим більше, коли вже на цю ділянку є плани і вона у їхній власності.
Генеральний директор ТзОВ «Жасмін Лінжері» Олена Очеретна, яка піклується про розширення свого виробництва, каже: про те, що саме має бути на сусідній території вони взагалі не знали.
«Ми вже вклали у цю роботу дуже багато, а зрозуміли, що там буде забудова тільки коли прийшли за містобудівними умовами», – каже вона і додає: нічого нового в детальний план не додавали проектанти, а слідували чинному генплану.
Як зазначив начальник управління містобудування та архітектури Веніамін Туз, сьогодні від усіх проектантів-розробників детальних планів територій, у Луцькій міськраді вимагають передбачати будівництво дошкільних навчальних закладів, шкіл, громадської забудови. Адже дуже часто в мікрорайонах, де планується нове житлове будівництво у місті є нестача місць в садочках та школах.
Натомість голова комісії Роман Бондарук вважає: цей документ вже має в собі закладену «міну», бо документує конфлікт. Так, каже він, «Луцьксантехмонтаж № 536» навряд чи погодиться на такий ПДП, тож або буде домагатися його скасування через суд, або іншим способом, бо міська рада не може диктувати, що саме їм будувати на своїй території.
В будь-якому випадку ТзОВ «Жасмін Лінжері» стане заручником ситуації, хоч ні в чому не винне. Його підтримав і Олександр Ткачук, який запропонував проектантам внести зміни і винести вже на наступну сесію документ, з яким погодяться всі сторони.
Проте його колега депутат Андрій Маруняк, який працює заступником начальника управління містобудування та архітектури Луцької міської ради, пояснює: внесення змін в цей проект детального плану займе не тиждень чи два, а два-три місяці, бо його треба буде знову виносити на громадське обговорення. Натомість, не виключено, що забудовник піде на компроміс і погодиться принаймні частину території віддати під садочок.
«Коли будується великий житловий мікрорайон, там має бути і садочок. Чи буде там він побудований окремо? Очевидно ні. Але якщо прибудований, то думаю забудовник, щось таке зробить. Нехай забудовник пропонує де і що він може розмістити на своїй території. Звичайно найкраще – хай би генплан приймався і все б тоді відповідало генплану, але всі поспішають», – пояснив він.
Урешті більшість членів комісії проголосували за проект рішення. Проте водночас вони вирішили направити рекомендацію підприємству «Луцьксантехмонтаж № 536» звернутися в міську раду з проханням внести зміни в детальний план території.
Юлія МАЛЄЄВА
Підписуйтесь на наш Telegram-канал, аби першими дізнаватись найактуальніші новини Волині, України та світу
Про це стало відомо під час засідання постійної комісії міської ради з питань генерального планування, будівництва, архітектури та благоустрою 18 березня.
Нагадаємо, під час сесії наприкінці 2019 року луцькі обранці громади уже розглядали проект рішення про надання дозволу на розроблення проєкту детального плану території в межах вулиць Георгія Гонгадзе та Клима Савура в місті Луцьку. Однак, хоч обранці громади і проглосували «за» питання у більшості, на той момент був прийнятий тимчасовий мораторій на нові будівництва на території міста до затвердження генерального плану, який вже зовсім скоро має з’явитись у місті.
Серед запланованих об’єктів – побудова нового виробничого блоку підприємства із пошиття жіночої білизни ТзОВ «Жасмін Лінжері». І хоч до ініціативи підприємства у депутатів питань не виникло, але до самого документу зауважень було багато.
Зокрема, з’ясувалося, що цей же документ зачіпляє інтереси іншого підприємства – відомого луцького забудовника. Адже на цій території є земля, яка перебуває у його власності. Йдеться про «Луцьксантехмонтаж № 536», яке надіслало на адресу міськради листа щодо цього документу. Річ у тім, що на частині ділянки підприємства, де планується житлова забудова, у детальному плані території проектанти розмістили дитячий садок. Члени комісії зазначили: навряд чи забудовник зведе дитсадок на своїй території, тим більше, коли вже на цю ділянку є плани і вона у їхній власності.
Генеральний директор ТзОВ «Жасмін Лінжері» Олена Очеретна, яка піклується про розширення свого виробництва, каже: про те, що саме має бути на сусідній території вони взагалі не знали.
«Ми вже вклали у цю роботу дуже багато, а зрозуміли, що там буде забудова тільки коли прийшли за містобудівними умовами», – каже вона і додає: нічого нового в детальний план не додавали проектанти, а слідували чинному генплану.
Як зазначив начальник управління містобудування та архітектури Веніамін Туз, сьогодні від усіх проектантів-розробників детальних планів територій, у Луцькій міськраді вимагають передбачати будівництво дошкільних навчальних закладів, шкіл, громадської забудови. Адже дуже часто в мікрорайонах, де планується нове житлове будівництво у місті є нестача місць в садочках та школах.
Натомість голова комісії Роман Бондарук вважає: цей документ вже має в собі закладену «міну», бо документує конфлікт. Так, каже він, «Луцьксантехмонтаж № 536» навряд чи погодиться на такий ПДП, тож або буде домагатися його скасування через суд, або іншим способом, бо міська рада не може диктувати, що саме їм будувати на своїй території.
В будь-якому випадку ТзОВ «Жасмін Лінжері» стане заручником ситуації, хоч ні в чому не винне. Його підтримав і Олександр Ткачук, який запропонував проектантам внести зміни і винести вже на наступну сесію документ, з яким погодяться всі сторони.
Проте його колега депутат Андрій Маруняк, який працює заступником начальника управління містобудування та архітектури Луцької міської ради, пояснює: внесення змін в цей проект детального плану займе не тиждень чи два, а два-три місяці, бо його треба буде знову виносити на громадське обговорення. Натомість, не виключено, що забудовник піде на компроміс і погодиться принаймні частину території віддати під садочок.
«Коли будується великий житловий мікрорайон, там має бути і садочок. Чи буде там він побудований окремо? Очевидно ні. Але якщо прибудований, то думаю забудовник, щось таке зробить. Нехай забудовник пропонує де і що він може розмістити на своїй території. Звичайно найкраще – хай би генплан приймався і все б тоді відповідало генплану, але всі поспішають», – пояснив він.
Урешті більшість членів комісії проголосували за проект рішення. Проте водночас вони вирішили направити рекомендацію підприємству «Луцьксантехмонтаж № 536» звернутися в міську раду з проханням внести зміни в детальний план території.
Юлія МАЛЄЄВА
Знайшли помилку? Виділіть текст і натисніть
Підписуйтесь на наш Telegram-канал, аби першими дізнаватись найактуальніші новини Волині, України та світу
Коментарів: 4
Круто
Показати IP
18 Березня 2021 15:46
Схоже на штучно створені проблеми для підприємств. Планувати дитсадок нга приватній території, вони там в здоровому глузді?
Фєдя з Побєди
Показати IP
18 Березня 2021 15:48
Симбіоз ребячества і корупції !
Лучанин
Показати IP
20 Березня 2021 16:15
МОЖЕ ХВАТИТЬ БУДУВАТИ ДЛЯ МАЖОРІВ! Понакупляють собі по 10 квартир (і нашо вони їм). Он простим людям немає за що купувати ті квартири!
У Луцьку в двох чоловіків виявили наркотики
Сьогодні 14:47
Сьогодні 14:47
Щоб оформили відстрочку: на Закарпатті уролог за $300 продав чоловікові камінь з сечовивідних шляхів онкохворої пацієнтки
Сьогодні 14:14
Сьогодні 14:14
На Волині п'яний мотоцикліст врізався в електроопору
Сьогодні 13:58
Сьогодні 13:58
На Волині і ще в 4 областях: у магазинах популярної мережі секонд-хендів – масштабні обшуки
Сьогодні 13:25
Сьогодні 13:25
На Волині в ставку знайшли тіло чоловіка
Сьогодні 12:53
Сьогодні 12:53
У Луцьку провели в останню дорогу Героя Дмитра Гордійчука
Сьогодні 12:36
Сьогодні 12:36

Додати коментар:
УВАГА! Користувач www.volynnews.com має розуміти, що коментування на сайті створені аж ніяк не для політичного піару чи антипіару, зведення особистих рахунків, комерційної реклами, образ, безпідставних звинувачень та інших некоректних і негідних речей. Утім коментарі – це не редакційні матеріали, не мають попередньої модерації, суб’єктивні повідомлення і можуть містити недостовірну інформацію.