У луцькому парку облаштують комфортну громадську вбиральню
У Центральному парку Луцька облаштують громадську вбиральню.
Про це на своїй сторінці у фейсбук повідомив радник Луцького міського голови Ігор Поліщук.
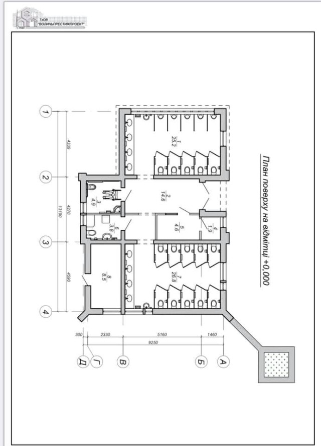
«Якщо запитати лучан стосовно того, чого найбільше не вистачає в Центральному парку, найчастіше лунає відповідь про необхідність облаштувати нормальну, чисту й комфортну громадську вбиральню, адаптовану для потреб людей з інвалідністю та з пеленальною кімнатою для мам.
Саме таку на наше замовлення розробили проектанти, тож плануємо облаштувати її у парку вже цього року, адже вже дуже багато років лучани в парку не можуть скористатися елементарними зручностями, помити руки і т.д», – йдеться у дописі.
Підписуйтесь на наш Telegram-канал, аби першими дізнаватись найактуальніші новини Волині, України та світу
Про це на своїй сторінці у фейсбук повідомив радник Луцького міського голови Ігор Поліщук.
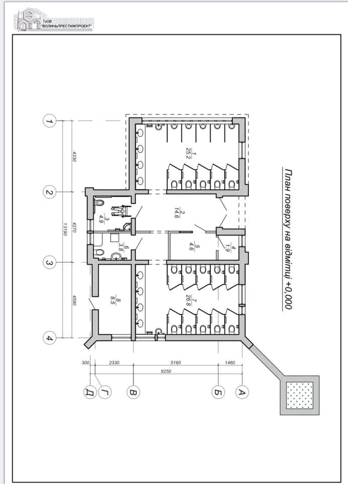
«Якщо запитати лучан стосовно того, чого найбільше не вистачає в Центральному парку, найчастіше лунає відповідь про необхідність облаштувати нормальну, чисту й комфортну громадську вбиральню, адаптовану для потреб людей з інвалідністю та з пеленальною кімнатою для мам.
Саме таку на наше замовлення розробили проектанти, тож плануємо облаштувати її у парку вже цього року, адже вже дуже багато років лучани в парку не можуть скористатися елементарними зручностями, помити руки і т.д», – йдеться у дописі.
Знайшли помилку? Виділіть текст і натисніть
Підписуйтесь на наш Telegram-канал, аби першими дізнаватись найактуальніші новини Волині, України та світу
Коментарів: 7
Водій гамновоза
Показати IP
7 Травня 2020 17:30
Маленький подвиг 10грн, великий 20грн.
Andrij
Показати IP
7 Травня 2020 18:08
Behind the new wc is for free )))
вальдемар
Показати IP
7 Травня 2020 19:56
згідно нормативів для жінок мае бути в 2 рази більше кабінок ніж для мужчин у всіх загалбних туалетах
Дідо до вальдемар
Показати IP
7 Травня 2020 21:02
Де ж рівноправність? Нехай і жінки стоячи.
Не сексист до вальдемар
Показати IP
8 Травня 2020 08:29
А кабінок в два рази більше. Можливо ви погано рахуєте?
nutela до вальдемар
Показати IP
8 Травня 2020 14:02
так і є на схемі,
Якось так
Показати IP
7 Травня 2020 22:20
Шо ти мелиш!!!
Під льодом Антарктиди знайшли десятки тисяч невідомих структур: що показала нова карта
Сьогодні 00:16
Сьогодні 00:16
7 лютого: свята, події, факти. День морозива на сніданок та День народження вогнегасника
Сьогодні 00:00
Сьогодні 00:00
У Словенії планують заборонити дітям доступ до соцмереж
6 Лютого 2026 23:46
6 Лютого 2026 23:46
Після скандалу з Епштейном Норвегія ініціює розслідування щодо експрем'єра Ягланда
6 Лютого 2026 23:27
6 Лютого 2026 23:27
Луцькі спільноти, поезія та музика: у просторі PEN Ukraine в Києві відбувся волинський квартирник
6 Лютого 2026 23:08
6 Лютого 2026 23:08
Чехія суттєво скорочує кошти на гумдопомогу за кордоном
6 Лютого 2026 22:49
6 Лютого 2026 22:49
ТЦК зараз забезпечують 90% мобілізації, – Сирський
6 Лютого 2026 22:30
6 Лютого 2026 22:30
У Луцькому районі відкрили ще один клас безпеки
6 Лютого 2026 22:10
6 Лютого 2026 22:10
⚡️Наш Telegram-канал. Оперативні новини з Волині, України і світу⚡️
6 Лютого 2026 21:54
6 Лютого 2026 21:54
В Польщі на військову частину вдруге за тиждень впав дрон
6 Лютого 2026 21:51
6 Лютого 2026 21:51






Додати коментар:
УВАГА! Користувач www.volynnews.com має розуміти, що коментування на сайті створені аж ніяк не для політичного піару чи антипіару, зведення особистих рахунків, комерційної реклами, образ, безпідставних звинувачень та інших некоректних і негідних речей. Утім коментарі – це не редакційні матеріали, не мають попередньої модерації, суб’єктивні повідомлення і можуть містити недостовірну інформацію.