USD 40.45 40.75
  • USD 40.45 40.75
  • EUR 44.50 45.20
  • PLN 3.30 4.00

У місті на Волині будуватимуть житлову багатоповерхівку

3 Червня 2019 18:10
Новий житловий багатоквартирний будинок до 30 метрів заввишки побудують в одному з найбільших міст Волині.

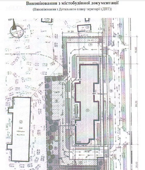
Містобудівні умови та обмеження для проектування нового будівництва багатоквартирного житлового будинку з вбудованими приміщеннями громадського призначення на вулиці Стуса 2а у Нововолинську затвердили наказом відділу містобудування та архітектури виконкому Нововолинської міськради. Замовником виступає громадянин Володимир Гураль.

Цільове призначення земельної ділянки – для будівництва та обслуговування багатоквартирного житлового будинку з об’єктами торгово-розважальної та ринкової інфраструктури, категорія земель – землі громадської та житлової забудови.

Гранична висота будинку – до 30 метрів, максимально допустимий відсоток забудови ділянки – до 35%, максимально допустима щільність населення в межах житлової забудови – 740 осіб на гектар.



Ділянка та об’єкт забудови розташовані на прилеглій до центральної частині міста. При проектуванні необхідно передбачити конструктивні рішення для будівництва на підроблюваних територіях з врахуванням довідки Західно-Української виконавчої дирекції з ліквідації шахт для забезпечення міцності та стійкості несучих конструкцій будівлі в разі можливих просадок підроблених ґрунтів. Також потрібно враховувати вимоги щодо створення безперешкодного життєвого середовища для осіб з обмеженими фізичними можливостями та інших маломобільних груп населення, передбачити понижені бордюри, спеціальні з’їзди з тротуарів, влаштування пандусів або спеціального підйомника.
Знайшли помилку? Виділіть текст і натисніть


Підписуйтесь на наш Telegram-канал, аби першими дізнаватись найактуальніші новини Волині, України та світу
Коментарів: 2
Анонім Показати IP 3 Червня 2019 20:28
Що, чесно? На Волині девятиповерхівку побудують? Ого, який до нас прогрес дійшов
а до Анонім Показати IP 4 Червня 2019 12:08
як ти думав,Волинь уже як Америка(((((((((((((

Додати коментар:

УВАГА! Користувач www.volynnews.com має розуміти, що коментування на сайті створені аж ніяк не для політичного піару чи антипіару, зведення особистих рахунків, комерційної реклами, образ, безпідставних звинувачень та інших некоректних і негідних речей. Утім коментарі – це не редакційні матеріали, не мають попередньої модерації, суб’єктивні повідомлення і можуть містити недостовірну інформацію.


Система Orphus